Provisionsfrei für Käufer! Stilvolle Eleganz trifft Wohnqualität – Ihr Traum-Bungalow
Objektnummer: 8509#dxEpb5
475.000€
49770 Herzlake, Deutschland
Zu Verkaufen
242.000€






Stilvoll wohnen in Herzlake – moderne 2-Zimmer-Wohnung mit Terrasse, Garten & Top-Ausstattung
Diese moderne und äußerst gepflegte 2-Zimmer-Eigentumswohnung im Erdgeschoss eines im Jahr 2023 errichteten Wohnhauses vereint Komfort, Effizienz und zeitloses Design – ideal für Kapitalanleger oder Eigennutzer, die Wert auf Qualität legen. Auf ca. 72,18 m² bietet die Wohnung eine durchdachte Raumaufteilung, helle Wohnbereiche und eine hochwertige Ausstattung, die ein zeitgemäßes Wohngefühl schafft.
Bereits beim Betreten fällt die moderne Gestaltung ins Auge: Der großzügige Wohn- und Essbereich ist mit hochwertigen Vinyl-Designböden ausgestattet, die nicht nur edel wirken, sondern auch pflegeleicht und langlebig sind. Große Fensterflächen mit Isolierverglasung und elektrischen Rollläden sorgen für eine angenehme Lichtstimmung und ermöglichen gleichzeitig einen hohen Wohnkomfort.
Die offene Küche fügt sich harmonisch in den Wohnbereich ein und lässt viel Raum für individuelle Gestaltung. Von hier gelangen Sie direkt auf die überdachte Terrasse, die in den gepflegten, komplett mit einem Stabgitterzaun eingezäunten Gartenbereich übergeht. Die Gartenmitbenutzung bietet zusätzlichen Wohnwert – ideal für entspannte Stunden im Freien.
Die Wohnung ist derzeit für 10,00 €/m² Kaltmiete vermietet – eine solide, nachhaltige Kapitalanlage in einer stetig nachgefragten Wohnlage.
Herzlake – Wohnen im charmanten Erholungsort
Herzlake ist eine lebenswerte Gemeinde im Landkreis Emsland, die für ihre naturnahe Lage, ihre sehr gute Infrastruktur und einen hohen Freizeitwert bekannt ist. Der Ort bietet eine perfekte Mischung aus ländlicher Ruhe und moderner Wohnqualität. Dank zahlreicher Einkaufsmöglichkeiten, Ärzten, Restaurants, Kindergärten und Schulen ist der tägliche Bedarf problemlos fußläufig oder in wenigen Minuten erreichbar.
Geprägt von Wäldern, Flussläufen und weitläufigen Radwegen ist Herzlake besonders bei Naturliebhabern und Erholungssuchenden beliebt. Die Hase, die den Ort durchzieht, lädt zu Spaziergängen und Aktivitäten an der frischen Luft ein. Gleichzeitig profitieren Bewohner von einer verkehrsgünstigen Lage mit schnellen Anbindungen nach Haselünne, Löningen, Meppen oder Lingen.
Herzlake überzeugt als Wohnort durch ein starkes Gemeinschaftsgefühl, vielfältige Vereine und eine hohe Lebensqualität – ein Ort, an dem man sich schnell zuhause fühlt.
Ausstattung – modern, komfortabel und auf lange Lebensdauer ausgelegt
Diese Erdgeschosswohnung überzeugt durch eine hochwertige, zeitgemäße Ausstattung, die sowohl optisch als auch funktional höchsten Wohnansprüchen gerecht wird. Im gesamten Wohn- und Schlafbereich sind hochwertige Vinyl-Designböden verlegt, die eine warme, moderne Atmosphäre schaffen und gleichzeitig besonders pflegeleicht, strapazierfähig und langlebig sind – ideal für einen dauerhaften und komfortablen Wohnalltag. Die hellen Oberflächen und klaren Linien unterstreichen das zeitgemäße Wohnkonzept und sorgen für ein harmonisches Gesamtbild.
Das Badezimmer präsentiert sich in einem ebenso eleganten wie zeitlosen Stil: formschöne, moderne Wand- und Bodenfliesen sowie eine ebenerdige Dusche verleihen dem Raum ein edles Ambiente und erleichtern die tägliche Nutzung. Die großzügige Gestaltung und die hochwertige Ausstattung bieten ein Plus an Komfort und unterstützen ein barrierearmes Wohnen.
Für ein angenehmes Wohnklima sorgt die energieeffiziente Luftwärmepumpe, die in Kombination mit der komfortablen Fußbodenheizung ein gleichmäßiges Wärmebild erzeugt und gleichzeitig die laufenden Energiekosten niedrig hält. Alle Räume sind damit bestens für die Zukunft ausgestattet.
Die Wohnung verfügt über moderne Kunststofffenster mit Isolierverglasung, die hervorragende Dämmwerte bieten und durch elektrische Rollläden ergänzt werden – ideal für zusätzlichen Schallschutz, Sicherheit und ein bequemes Handling im Alltag.
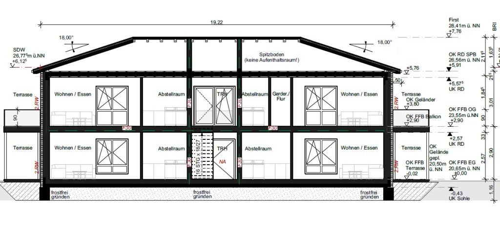
Ein weiteres Highlight ist der direkte Zugang zur überdachten Terrasse, die den Wohnraum harmonisch erweitert und zu entspannten Stunden im Freien einlädt. Die angrenzende Gartenfläche, komplett mit einem stabilen Stabgitterzaun eingefriedet, steht zur Mitbenutzung bereit und steigert den Erholungswert der Wohnung erheblich.
Abgerundet wird die Ausstattung durch einen PKW-Stellplatz direkt vor der Haustür, der kurze Wege garantiert und den Wohnkomfort zusätzlich erhöht. Dank der vorliegenden Teilungserklärung und der klaren Strukturen innerhalb der Eigentümergemeinschaft lässt sich die Wohnung zudem optimal als Kapitalanlage oder zur Eigennutzung verwalten.
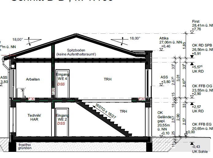
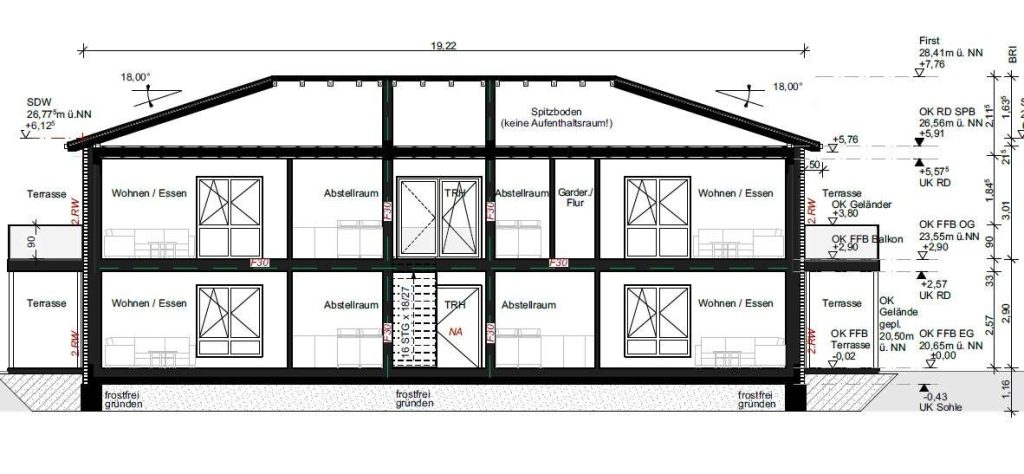
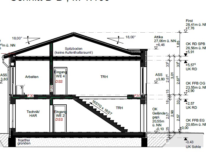
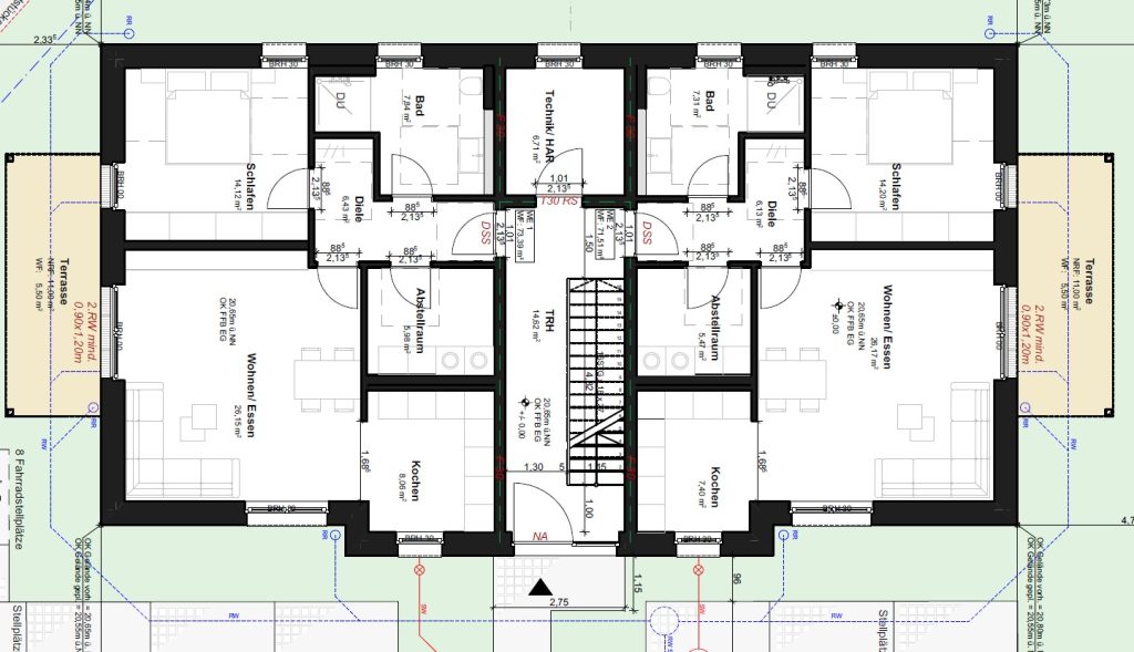
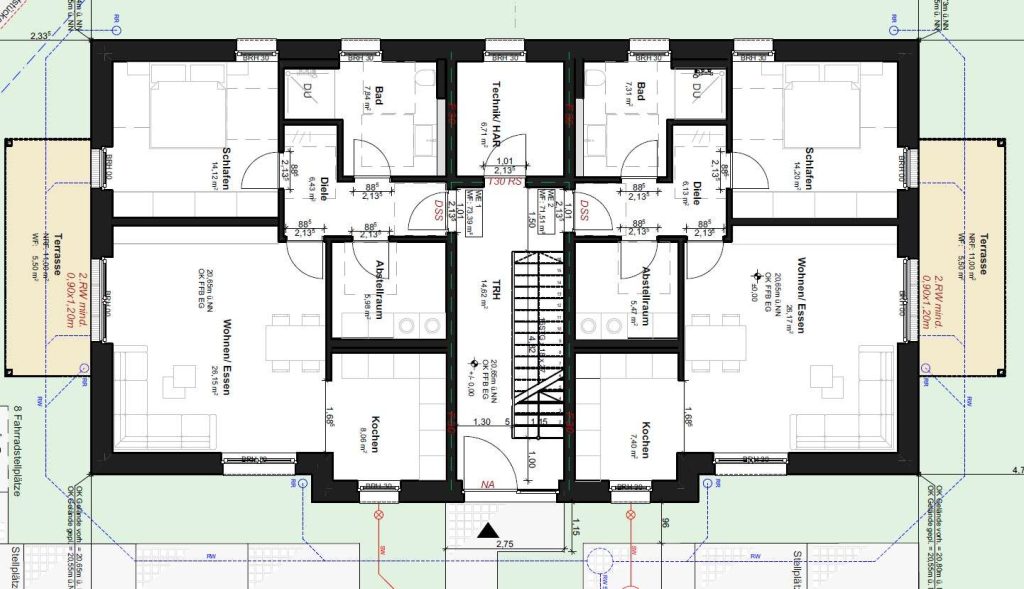
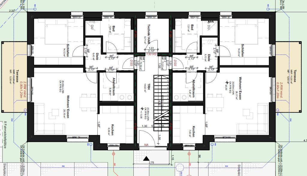
Wohnflächenaufteilung:
Erdgeschosswohnung:
Diele ca. 6,13 m²
Wohnzimmer ca. 26,17 m²
Offene Küche ca. 7,40 m²
Schlafen ca. 14,20 m²
Badezimmer ca. 7,31 m²
Abstell./HWR ca.5,47 m²
Terrasse anteilig ca.5,50 m²
Seit 2021 leitet er in zweiter Generation das Unternehmen. Ralf Gründer ist Inhaber von Gründer Immobilien in Dörpen…
Alle Immobilien des MaklersBüro: 04963-914923
E-Mail: anfrage@gruender-immobilien.de
Objektnummer: 8509#dxEpb5
Objektnummer: 8436#dxEpb5
Moderne Neubau-DHH in Fürstenau – energieeffizient & provisionsfrei für Käufer
Bei uns behalten Sie den Überblick . Im Benutzerbereich können SIe Ihre Objekte verwalten.