Käufer Provisionsfrei! Nordseenah & barrierearm – solider Bungalow mit Gestaltungsspielraum
Objektnummer: 8496#dxEpb5
236.000€
49744 Geeste, Deutschland
Zu Verkaufen
455.000€







































Exklusiver, klimafreundlicher Walmdachbungalow – moderner Neubau mit hochwertiger Ausstattung
Dieser exklusive und klimafreundliche Walmdachbungalow vereint moderne Architektur, energieeffiziente Technik und höchsten Wohnkomfort. Der Neubau wird bezugsfertig und schlüsselfertig inklusive aller erforderlichen Gewerke erstellt. Eine durchgehende, professionelle Baubetreuung während der gesamten Bauphase ist selbstverständlich. Eigenleistungen können nach Absprache berücksichtigt werden.
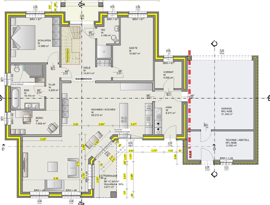
Auf einer Wohnfläche von ca. 148 m² ermöglicht das Haus komfortables ebenerdiges Wohnen mit einer klar strukturierten und zugleich großzügigen Raumaufteilung. Mittelpunkt des Hauses ist der offen gestaltete Wohn-, Ess- und Kochbereich mit ca. 59 m², der durch große Fensterflächen ein helles, freundliches Wohnambiente schafft. Kunststofffenster mit 3-fach-Verglasung sowie elektrische Rollläden unterstreichen den hochwertigen Ausstattungsstandard.
Der private Bereich überzeugt mit einem großzügigen Schlafzimmer inklusive Ankleide und Bad en Suite. Ein weiteres Schlafzimmer, ein Gäste-WC, ein Hauswirtschaftsraum sowie praktische Vorrats- und Abstellflächen runden das Raumangebot ab. Zusätzlich bietet der ausbaufähige Spitzboden mit ca. 63 m² attraktive Ausbaureserven für individuelle Nutzungsmöglichkeiten.
Die Beheizung erfolgt über eine moderne Luft-Wasser-Wärmepumpe in Verbindung mit Fußbodenheizung in allen Wohnräumen und gewährleistet energieeffizientes sowie behagliches Wohnen. Hochwertige Sanitärobjekte sind in allen Bereichen vorgesehen. Die Bodenbeläge werden mit großformatigen Fliesen (60 × 60 cm) ausgeführt, die Wandflächen in den Sanitärbereichen mit Wandfliesen im Format 60 × 30 cm.
Sämtliche Decken und Wände werden mit hochwertiger Raufaser tapeziert und weiß gestrichen. Auf Wunsch ist eine helle, dezente Farbabtönung möglich, sodass das Haus bei Übergabe bezugsfertig und neutral gestaltet ist.
Zum Objekt gehört eine Doppelgarage mit elektrischem 5-Meter-Sektionaltor sowie separatem Technik- und Abstellraum. Pflasterungen, Grünflächen, Beetanlagen sowie die vollständige Verrohrung für Schmutz- und Regenwasserleitungen sind im Leistungsumfang enthalten. Das Haus wird zur Übergabe sauber gereinigt übergeben.
Dieser exklusive komfortable Neubau Walmdachbungalow kann auf einem Grundstück ihrer Wahl bzw. auf einem von ihnen zur Verfügung gestellten Grundstück im Emsland oder Ostfriesland erstellt werden.
Kundenwünsche zu allen Gewerken können – abhängig vom jeweiligen Baufortschritt – flexibel berücksichtigt werden.
Der angegebene Kaufpreis bezieht sich auf das reine Wohnhaus, das Grundstück ist nicht im Kaufpreis enthalten.
Technische Kurzinformation – Moderner Walmdachbungalow
• Neubau, schlüsselfertig: Bezugsfertige Erstellung inkl. aller Gewerke, auf Wunsch Eigenleistungen möglich.
• Wohnfläche: ca. 148 m², ebenerdiges Wohnen, ausbaufähiger Spitzboden (ca. 63 m²).
• Räume: Großzügiger Wohn-/Essbereich (59 m²), Schlafzimmer mit Ankleide und Bad en Suite, Gästezimmer, Hauswirtschaftsraum, Vorrats- und Abstellflächen.
• Heizung & Energie: Luft-Wasser-Wärmepumpe, Fußbodenheizung, energieeffizient, klimafreundlich.
• Sanitär & Ausstattung: Hochwertige Sanitärobjekte, großformatige Bodenfliesen 60×60 cm, Wandfliesen 60×30 cm, Decken/Wände mit Rauhfaser tapeziert und weiß gestrichen, auf Wunsch hell abgetönt.
• Fenster & Türen: Kunststofffenster mit 3-fach-Verglasung, elektrische Rollläden, moderne Innentüren.
• Garage & Außenanlagen: Doppelgarage mit 5-m-Sektionaltor, Pflasterungen, Grünflächen, Beetanlagen, Verrohrungen für Schmutz- und Regenwasser.
• Besonderheiten: Durchgehende Baubetreuung während der Bauphase, flexible Umsetzung von Kundenwünschen je nach Baufortschritt, bezugsfertige Übergabe.
• Kaufpreis: Bezieht sich auf das reine Wohnhaus; Grundstück nicht enthalten.
• Preisgestaltung: Material- und Ausstattungswünsche werden individuell besprochen; nach Festlegung wird eine detaillierte Baubeschreibung mit verbindlichem Festpreis erstellt.
Wohnflächen (ca.)
• Wohnen / Kochen: 59,21 m²
• Schlafen: 15,85 m²
• Schlafen: 14,99 m²
• Bad: 10,11 m²
• Ankleide: 7,96 m²
• Diele: 14,91 m²
• Flur: 4,23 m²
• Duschbad-WC: 4,79 m²
• HWR: 8,21 m²
• Vorrat: 4,94 m²
Ausbaureserve
• Spitzboden: 63,09 m²
Nutzflächen
• Technik / Abstellraum: 12,88 m²
• Garage: 31,34 m²
Seit 2021 leitet er in zweiter Generation das Unternehmen. Ralf Gründer ist Inhaber von Gründer Immobilien in Dörpen…
Alle Immobilien des MaklersBüro: 04963-914923
E-Mail: anfrage@gruender-immobilien.de
Objektnummer: 8496#dxEpb5
Objektnummer: 8486#dxEpb5
Wohnen, wo Berlin am schönsten ist – charmante Doppelhaushälfte in Frohnau.
Bei uns behalten Sie den Überblick . Im Benutzerbereich können SIe Ihre Objekte verwalten.