Käufer Provisionsfrei: Wohnhaus mit Substanz u. Entwicklungspotenzial in Lathen
Objektnummer: 8500#dxEpb5
243.000€
37688 Beverungen, Deutschland
Zu Verkaufen
354.000€































Gepflegtes Einfamilienhaus mit Pool, Photovoltaik und moderner Sicherheitstechnik in Beverungen im Ortsteil Drenke
Dieses charmante Einfamilienhaus aus dem Jahr 2002 befindet sich in attraktiver Wohnlage von Beverungen und überzeugt durch eine durchdachte Raumaufteilung, solide Bauweise und einen sehr gepflegten Gesamtzustand.
Auf rund 120 m² Wohnfläche bietet das Haus ideale Voraussetzungen für Paare oder Familien, die ein sofort bezugsfähiges Zuhause mit moderner Technik suchen. Das ca. 650 m² große Grundstück bietet ausreichend Platz für Garten, Freizeit und Privatsphäre.
Im Erdgeschoss erwartet Sie ein heller Wohn- und Essbereich mit angenehmer Wohnatmosphäre, der direkt auf die großzügige 40 m² große Terrasse führt , wovon ca. 3,5 x 5,50 m mit Sicherheitsglas überdacht sind – perfekt für gemütliche Stunden im Freien. Die schicke Einbauküche ist im Kaufpreis enthalten, ein Gäste-WC und praktische Abstellflächen im Hauswirtschaftsraum runden das Raumangebot auf dieser Ebene ab.
Im Obergeschoss stehen drei gut geschnittene Schlafzimmer zur Verfügung – ideal als Elternschlafzimmer, Kinderzimmer oder Homeoffice. Ein modernes Badezimmer mit Badewanne und Dusche ergänzt das Raumangebot im Dachgeschoss.
Fazit
Ein solides und gepflegtes Einfamilienhaus mit moderner Photovoltaiktechnik, guter Raumaufteilung und attraktiver Grundstücksgröße – ideal für Käufer, die Wert auf Substanz, Energieeffizienz und ein angenehmes Wohnumfeld legen.
Gerne stellen wir Ihnen dieses Objekt bei einer persönlichen Besichtigung näher vor.
Der Ortsteil Drenke liegt ruhig und naturnah innerhalb der charmanten Stadt Beverungen im nördlichen Nordrhein-Westfalen. Die Umgebung ist geprägt von grünen Landschaften, Wiesen und Wäldern, ideal für Familien, Naturliebhaber oder alle, die Erholung und Lebensqualität suchen. Gleichzeitig sind Einkaufsmöglichkeiten, Restaurants und Ärzte gut erreichbar, sodass Alltag und Freizeit optimal miteinander verbunden werden.
Drenke bietet eine freundliche Dorfgemeinschaft, ruhige Wohnstraßen und eine sichere Umgebung für Kinder. Die Nähe zu Beverungen und den umliegenden Städten sorgt für eine gute Anbindung an Schulen, Kindergärten und öffentliche Verkehrsmittel. Naturnahe Spaziergänge, Fahrrad- oder Lauftouren lassen sich direkt vor der Haustür starten – hier verbinden sich ländlicher Charme und moderner Wohnkomfort in idealer Weise.
Ausstattung & Technik
Das Haus kombiniert zeitgemäßen Wohnkomfort mit moderner Technik und vielen Extras: Die Beheizung erfolgt über eine effiziente Gasheizung (Flüssiggas), zusätzlich sorgt ein Speckstein-Kaminofen im Wohnzimmer für wohlige Wärme und eine gemütliche Atmosphäre. 2021 wurde eine Enpal-Photovoltaikanlage mit 6,7 kW installiert, die durch Wartung und Versicherung ca. 105 € monatlich kostet, während eine Rückvergütung von ca. 30 € monatlich hinzukommt. Für Sicherheit und Komfort sorgen elektrische Rollläden im gesamten Haus, Kunststofffenster mit abschließbare Fensterverriegelung sowie ein Einbruchschutz mit mechanischer Verriegelung und eine Alarmanlage mit zwei integrieren Kameras.
Außenbereich
Der Außenbereich ist ein echtes Highlight: Der Swimmingpool (5 x 3 m) mit Wärmepumpe bietet Badespaß im Sommer, das Gartenhaus bietet Platz für Geräte oder Hobbyaktivitäten. Die überdachte Terrasse lädt zu entspannten Stunden ein, während das gepflegte, komplett eingezäunte Grundstück ausreichend Raum für Garten, Spiel und Freizeitgestaltung bietet. Abgerundet wird das Angebot durch die direkt am Wohnhaus befindliche Garage mit Betonboden und elektrischem Tor.
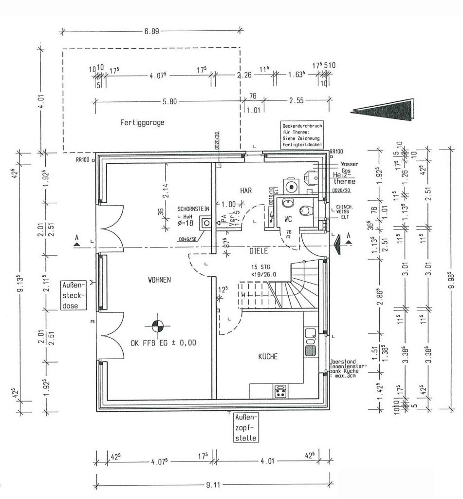
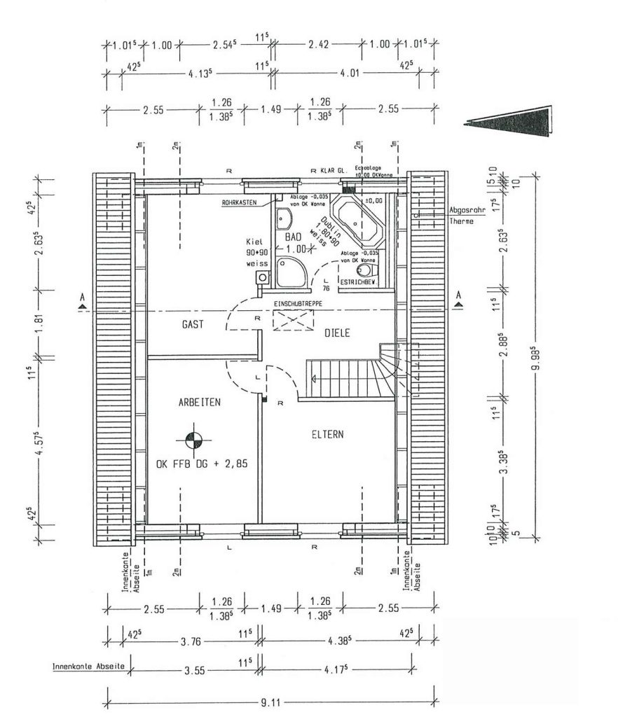
Wohnflächenaufteilung:
Erdgeschoss:
Diele ca. 10,00 m²
Wohnzimmer ca. 37,20 m²
Küche ca. 13,50 m²
Gäste-WC ca. 1,85 m²
Hauswirtschaftsraum ca. 8,20 m²
Dachgeschoss:
Flur ca. 6,00 m²
Schlafzimmer ca. 14,20 m²
Schlafzimmer ca. 12,30 m²
Schlafzimmer ca. 10,80 m²
Badezimmer ca. 7,60 m²
Nutzflächen: Garage, Gartenhaus
Seit 2021 leitet er in zweiter Generation das Unternehmen. Ralf Gründer ist Inhaber von Gründer Immobilien in Dörpen…
Alle Immobilien des MaklersBüro: 04963-914923
E-Mail: anfrage@gruender-immobilien.de
Objektnummer: 8500#dxEpb5
Objektnummer: 8497#dxEpb5
Provisionsfrei für Käufer – Großzügig. Gepflegt. Vielseitig. Ihr Zuhause mit Platz, Ruhe und Zukunft
Bei uns behalten Sie den Überblick . Im Benutzerbereich können SIe Ihre Objekte verwalten.