Provisionsfrei für Käufer: Wohnanlage mit 9 WE in Langenfeld – top Zustand, beste Lage
Objektnummer: 8491#dxEpb5
1.550.000€
26810 Westoverledingen, Deutschland
Zu Verkaufen
1.150.000€














Provisionsfrei für den Käufer – modernes Mehrfamilienhaus am Stadtrand von Papenburg
Auf einem attraktiven Lückengrundstück am Stadtrand von Papenburg entstand dieses hochwertig errichtete Mehrfamilienhaus als nachhaltige Kapitalanlage mit sofortigen Mieteinnahmen. Das Gebäude umfasst vier vermietete Wohneinheiten – zwei großzügige Erdgeschosswohnungen mit jeweils ca. 89 m² sowie zwei Dachgeschosswohnungen mit jeweils ca. 80 m² Wohnfläche.
Architektur & Wohnkonzept
Die Grundrissgestaltung überzeugt durch eine klare, funktionale Struktur und eine ausgesprochen helle Wohnatmosphäre. Großzügige Fensterflächen sind intelligent positioniert und sorgen für optimale Lichtverhältnisse, ohne Stellflächen einzuschränken.
Die offen gestalteten Wohn-, Ess- und Küchenbereiche bilden das kommunikative Zentrum jeder Wohnung und vermitteln ein modernes Raumgefühl mit hochwertiger Optik. Bodentiefe Fensterelemente schaffen fließende Übergänge nach außen: Im Erdgeschoss führen sie auf teilüberdachte Gartenterrassen. Im Dachgeschoss öffnen sie sich zu jeweils einem Balkon. Die Architektur vereint zeitgemäßen Wohnkomfort mit nachhaltiger Vermietbarkeit – ein entscheidender Faktor für Kapitalanleger.
Ein modernes, vollvermietetes Renditeobjekt in solider Bauausführung und attraktiver Stadtrandlage von Papenburg. Die Kombination aus durchdachter Architektur, hochwertiger Ausstattung und nachhaltiger Vermietbarkeit macht dieses Mehrfamilienhaus zu einer überzeugenden Kapitalanlage.
Eine ausführliche Baubeschreibung sowie aussagekräftige Bauzeichnungen stellen wir Ihnen gerne auf Wunsch per E-Mail oder postalisch zur Verfügung.
Für weitere Informationen steht Ihnen das Team von Gründer Immobilien aus Dörpen im Emsland jederzeit kompetent zur Verfügung.
Der Ortsteil Völlen liegt idyllisch im südlichen Bereich der Gemeinde Westoverledingen im Landkreis Leer und steht für ruhiges, naturnahes Wohnen mit gewachsener Dorfgemeinschaft. Die Umgebung ist geprägt von weitläufigen Wiesen- und Weideflächen, typischer ostfriesischer Landschaft und einer angenehmen, entschleunigten Atmosphäre – ideal für Familien, Ruhesuchende und Berufspendler gleichermaßen.
Trotz der ländlichen Lage profitieren Bewohner von einer guten infrastrukturellen Anbindung. Einkaufsmöglichkeiten, Ärzte, Apotheken, Kindergärten und Schulen befinden sich im Gemeindegebiet von Westoverledingen und in den umliegenden Orten. Die Städte Leer (Ostfriesland) und Papenburg sind in kurzer Fahrzeit erreichbar und bieten ein erweitertes Angebot an Einkauf, Gastronomie, Gesundheitsversorgung sowie weiterführenden Schulen.
Die Verkehrsanbindung ist durch die Nähe zur Bundesstraße B70 sowie zur Autobahn A31 gut strukturiert. Dadurch sind sowohl regionale als auch überregionale Ziele komfortabel erreichbar – ein Pluspunkt für Pendler in Richtung Emsland oder Ostfriesland.
Freizeit- und Erholungsmöglichkeiten ergeben sich aus der unmittelbaren Nähe zur Natur. Rad- und Spazierwege entlang von Kanälen, Feldern und Deichen prägen das Landschaftsbild und bieten hohen Erholungswert. Die ruhige Wohnlage kombiniert mit großzügigen Grundstücksstrukturen sorgt für ein angenehmes Wohnumfeld mit viel Privatsphäre.
Völlen in Westoverledingen vereint somit dörfliche Beständigkeit mit praktischer Nähe zu städtischer Infrastruktur – ein attraktiver Wohnstandort für alle, die Wert auf Lebensqualität im Grünen legen.
Ausstattung & Bauqualität
Das Gebäude wurde schlüsselfertig inklusive Maler- und Gartenarbeiten erstellt. Besonderer Wert wurde auf eine hochwertige und technisch einwandfreie Bauausführung gelegt.
Der Wohnbereich ist durchgehend mit einheitlichen, modernen Fliesen ausgestattet. In den Schlafräumen wurde hochwertiger Vinylboden verlegt; alternativ ist auch hier eine Fliesenausführung möglich. In sämtlichen Räumen sorgt eine komfortable Fußbodenheizung für gleichmäßige Wärmeverteilung, wobei jeder Raum separat regulierbar ist. Elektrische Jalousien ermöglichen zusätzlichen Wohnkomfort und individuelle Lichtsteuerung.
Die Badezimmer sind altersgerecht und geschmackvoll gestaltet. Zur Ausstattung gehören eine bodengleiche Dusche, Badewanne, Waschbecken mit hochwertiger Armatur, Spiegel sowie ein Hänge-WC. Die Wand- und Bodenkeramik ist harmonisch aufeinander abgestimmt. Die beiden Erdgeschosswohnungen verfügen zusätzlich jeweils über ein Gäste-WC.
Küche & Hauswirtschaft
Die Küchenbereiche sind offen in den Wohn-/Essraum integriert und bieten eine moderne, kommunikative Wohnlösung. Direkt angrenzend befindet sich jeweils ein praktischer Hauswirtschaftsraum mit zusätzlichem Stauraum. Bei Bedarf unterstützen wir Sie gern bei der Planung und Auswahl einer Einbauküche in Zusammenarbeit mit einem professionellen Küchenstudio.
Außenanlagen & Stellplätze
Das Grundstück wurde pflegeleicht angelegt und bietet dennoch ansprechendes Gestaltungspotenzial. Die Terrassen- und Hofflächen sind einheitlich gepflastert, die Grünflächen mit Rasensaat versehen. Vier PKW-Stellplätze befinden sich direkt am Haus. Optional kann gegen Aufpreis eine Carportanlage aus hochwertigem Konstruktionsvollholz mit zusätzlichen Abstellräumen errichtet werden.
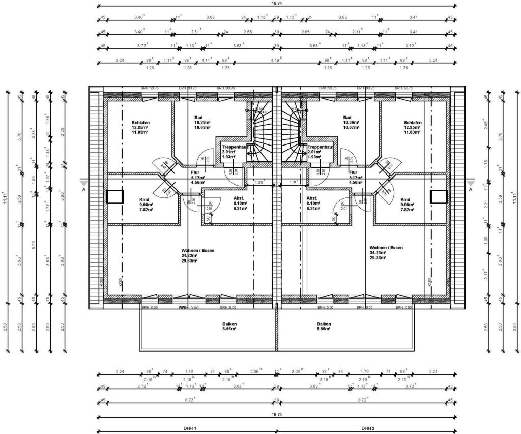
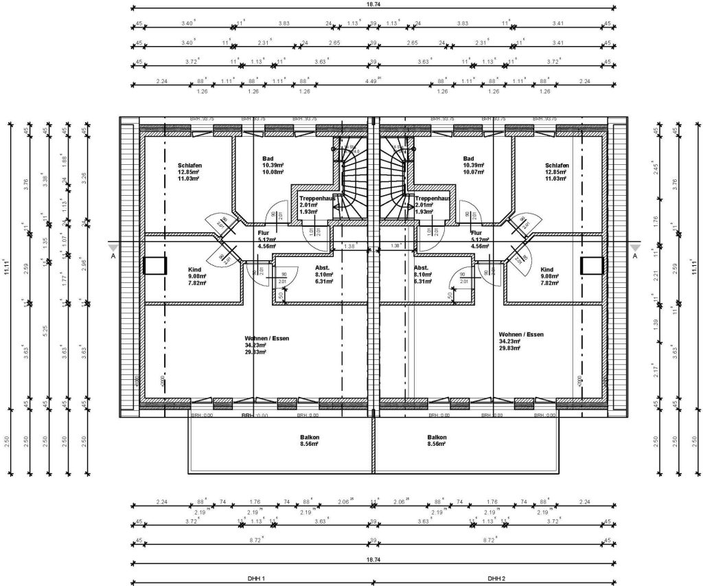
Raumaufteilung im Überblick
Gemeinschaftsflächen Erdgeschoss:
Eingang/Treppenhaus ca. 5,09 m²
Hausanschlussraum ca. 6,14 m²
Erdgeschosswohnungen (je Einheit ca. 89 m²):
Flur ca. 6,21 m²
Gäste-WC ca. 2,15 m²
Badezimmer ca. 7,18 m²
Küche/Wohn-/Essbereich ca. 32,53 m²
Schlafzimmer I ca. 13,01 m²
Schlafzimmer II ca. 8,04 m²
Abstellraum ca. 6,01 m²
Gemeinschaftsflächen Dachgeschoss:
Eingang/Treppenhaus ca. 1,93 m²
Dachgeschosswohnungen (je Einheit ca. 80 m²):
Flur ca. 4,56 m²
Badezimmer ca. 10,08 m²
Küche/Wohn-/Essbereich ca. 29,23 m²
Schlafzimmer I ca. 11,03 m²
Schlafzimmer II ca. 7,82 m²
Abstellraum ca. 6,31 m²
Seit 2021 leitet er in zweiter Generation das Unternehmen. Ralf Gründer ist Inhaber von Gründer Immobilien in Dörpen…
Alle Immobilien des MaklersBüro: 04963-914923
E-Mail: anfrage@gruender-immobilien.de
Objektnummer: 8491#dxEpb5
Objektnummer: 8507#dxEpb5
Modernes Wohnen – Exklusive 2-Zimmer-DG-Wohnung in top Lage – Erstbezug
Bei uns behalten Sie den Überblick . Im Benutzerbereich können SIe Ihre Objekte verwalten.