Provisionsfrei für Käufer! Ein Haus mit Charakter – neu gedacht für modernes Leben
Objektnummer: 8524
265.000€
49762 Lathen, Deutschland
Zu Verkaufen
499.000€





















Provisionsfrei für den Käufer: Dieser exklusive komfortable Neubau Winkelwalmdachbungalow kann auf einem Grundstück ihrer Wahl bzw. auf einem von ihnen zur Verfügung gestellten Grundstück im Emsland oder Ostfriesland erstellt werden. Der Kaufpreis bezieht sich auf das reine Wohnhaus das Grundstück ist nicht im Kaufpreis enthalten.
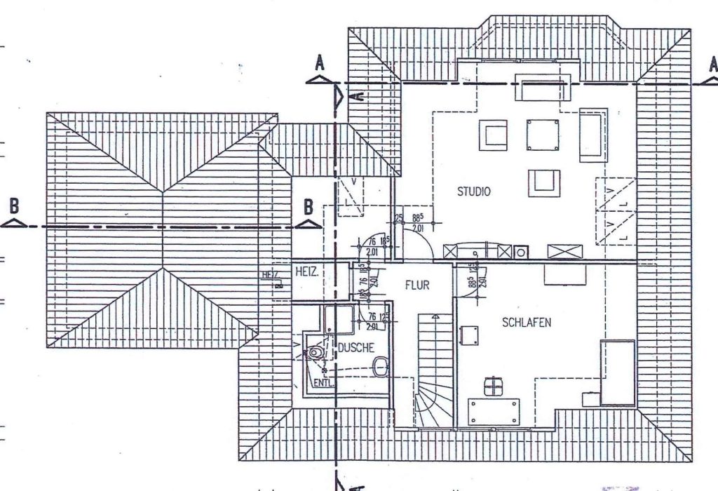
Das Objekt verfügt über eine durchdachte Raumaufteilung, durchdachte und vor allem kurze Wege. Im Dielen bzw. Eingangsbereich befindet sich eine ansprechende Treppe. Durch das im Erdgeschoss befindliche Schlafzimmer sowie das hochwertig ausgestattete Badezimmer ist das Wohnen auf einer Ebene gewährleistet. Das Wohn/Esszimmer verfügt über bodentiefe Fensterelemente (kleiner Glaserker) von hier aus hat man einen traumhaften Blick auf das Gartengrundstück, direkter Zugang zur teil überdachten Terrasse. Das Esszimmer ist zur Küche hin geschlossen, diese kann ohne Aufwand auch mit einer Schiebetür versehen werden. Im Dachgeschoss befinden sich ein Schlafzimmer, ein Wohnstudiozimmer, ein ansprechendes Duschbad sowie der Technikraum bzw. Heizungsraum. Schlüsselfertige Erstellung inkl. Maler & Gartenarbeiten. Auf eine hochwertige und einwandfreie Bauqualität wird geachtet.
Daten Energieausweis: In Vorbereitung !
Grundlegend erstellen wir Gebäude nach BEG EH40 Standard
Bodenbeläge:
Es werden ansprechende und vor allem hochwertige Bodenbeläge verlegt. Alle Räume des Wohnhauses verfügen über eine Fußbodenheizung (jeder Raum ist separat regelbar).
Küche:
Angrenzend an der Küche befindet sich ein großzügiger Hauswirtschaftsraum, direkter Zugang in die Garage. Durch ein bodentiefes Fensterelement gelangt man auf die überdachte Gartenterrasse. Gerne sind wir Ihnen auch bei der Wahl einer neuen Einbauküche behilflich, unser Küchenstudio wird Sie auch in diesem Punkt professionell beraten.
Bäder:
Es werden zwei hochwertige Bäder installiert. Das Badezimmer im Erdgeschoss verfügt über die folgende Ausstattung: großzügige bodentiefe Dusche, Wannenanlage mit Ablageflächen, Doppelwaschtisch mit Halbsäulen (Ablageflächen), Hänge WC & Bidet, Handtuchheizkörper, elegante Armaturen & Elemente, deckenhohe Verfliesung. Außer der Badewanne ist die Ausstattung im Badezimmer im Dachgeschoss identisch. Das Gäste WC im Erdgeschoss verfügt über die folgende Ausstattung:
Hänge WC, Waschbecken mit Halbsäule, elegante Armaturen & Elemente, deckenhohe Verfliesung.
Garage:
Die separat stehende Garage mit E-Sektionaltor verfügt über einen direkten Zugang ins Objekt bzw. in den Hauswirtschaftsraum sowie in den hinteren Gartenbereich.
Grundstück:
Das gesamte Gartengrundstück wird komplett angelegt. Die Freiflächen werden mit Rasensaat versehen. Die Hoffläche (Garageneinfahrt, Carport, Eingangsbereich) und die Gartenterrasse werden großzügig bepflastert. Die Grundstücksgrenzen werden mit einer Lebensbaumhecke eingefriedet. Bei der Gestaltung der Gartenanlage kann der Erwerber ebenfalls mitbestimmen. eingefriedet.
Diese Neubau Winkelwalmdachvilla wird in einer hochwertigen Bauweise komplett schlüsselfertig und klimafreundlich nach EH40 Standard erstellt. Eine ausführliche Baubeschreibung zum Objekt sowie eine aussagekräftige Bauzeichnung können wir Ihnen gerne per Bedarf per Mail oder auf dem Postweg zukommen lassen. Lassen Sie sich bei einer Besichtigung von uns inspirieren damit Ihr Traum vom Eigenheim wahr wird.
Erdgeschoss:
Diele ca. 11,4 m²
Gäste WC ca. 1,6 m²
Bad/Dusche/WC ca. 7,3 m²
Küche ca. 15,1 m²
Wohn/Esszimmer ca. 42,1 m²
Schlafzimmer ca. 17,4 m²
Hauswirtschaftsraum ca. 6,1 m²
Dachgeschoss:
Flur ca. 5,5 m²
Duschbad WC ca. 7,1 m²
Wohnstudio ca. 35,8 m²
Sauna ca. 6,1 m²
Schlafzimmer ca. 23,4 m²
Heizungsraum ca. 1,5 m²
Seit 2021 leitet er in zweiter Generation das Unternehmen. Ralf Gründer ist Inhaber von Gründer Immobilien in Dörpen…
Alle Immobilien des MaklersBüro: 04963-914923
E-Mail: anfrage@gruender-immobilien.de
Objektnummer: 8524
Objektnummer: 8509
Provisionsfrei für Käufer! Moderner Edel-Bungalow in ruhiger Wohnlage!
Bei uns behalten Sie den Überblick . Im Benutzerbereich können SIe Ihre Objekte verwalten.