Provisionsfrei für Käufer! Klimafreundlicher Neubau Walmdachbungalow im Emsland
Objektnummer: 8476
425.000€
26899 Rhede (Ems), Deutschland
Zu Vermieten
719€











Exklusive 2-Zimmer-Dachgeschosswohnung in Rhede – modernes Wohnen über den Dächern von Rhede.
Diese ansprechende Dachgeschosswohnung überzeugt nicht nur durch ihre moderne Ausstattung und großzügige Raumaufteilung, sondern auch durch ein Wohnkonzept, das Komfort, Stil und Alltagstauglichkeit ideal miteinander verbindet.
Die Wohnung befindet sich im Dachgeschoss eines architektonisch ansprechenden Wohngebäudes mit insgesamt 13 Einheiten. Ein zusätzlicher Pluspunkt ist die gewerbliche Einheit im Erdgeschoss, in der ein bereits vermieteter Getränkemarkt untergebracht ist. Dieser bietet nicht nur praktische Nahversorgung, sondern trägt auch zur Belebung und Attraktivität der Umgebung bei.
Die hochwertige Bauweise, moderne Ausstattung und die attraktive Lage in Rhede machen diese Wohnung zu einem Ort, an dem Sie sich langfristig wohlfühlen können.
Diese Dachgeschosswohnung kombiniert stilvolles Wohnen mit durchdachter Funktionalität und zeitgemäßem Komfort. Eine Immobilie, die sowohl durch ihre Qualität als auch durch ihre Lage überzeugt – und darauf wartet, von Ihnen entdeckt zu werden.
Genießen Sie die zentrale Lage, die Ihnen kurze Wege zu allen wichtigen Einrichtungen und Geschäften in Rhede-Ems ermöglicht.
Rhede an der Ems ist nicht nur ein idyllisches Städtchen, sondern auch der Verwaltungsstandort der Samtgemeinde Rhede. Gelegen im Herzen des Emslandes, umgeben von den Orten Brual, Borsum und Neurhede, ist Rhede ein Zuhause für rund 4800 Einwohner. Die Lage direkt an der A31 macht Rhede nicht nur verkehrstechnisch gut erreichbar, sondern auch attraktiv für Unternehmen. Hier finden sich zahlreiche mittelständische Betriebe, die das wirtschaftliche Leben der Region prägen und Arbeitsplätze schaffen. Die Nähe zur niederländischen Grenze verleiht Rhede eine internationale Note und eröffnet Möglichkeiten für grenzüberschreitende Kooperationen und den kulturellen Austausch.
Rhede ist eingebettet in eine reizvolle Landschaft und bietet seinen Bewohnern und Besuchern eine hohe Lebensqualität. Gleichzeitig sind größere Städte wie Papenburg, Leer und Meppen nur einen Katzensprung entfernt und laden zu Ausflügen und Shoppingtouren ein. Als ein Teil des Landkreises Emsland profitiert Rhede von einer starken regionalen Vernetzung und Infrastruktur, die die Lebens- und Arbeitsbedingungen in der Stadt weiter verbessern. Rhede – ein Ort zum Wohlfühlen und Arbeiten, der das Beste aus Stadt und Land vereint.
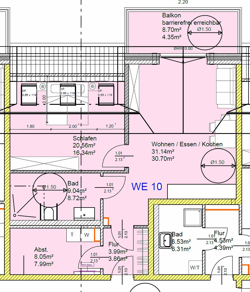
Mit einer Wohnfläche von ca. 71,96 m² bietet diese 2-Zimmer-Wohnung ausreichend Platz zum Leben, Arbeiten und Wohlfühlen. Der lichtdurchflutete Wohn- und Essbereich mit offener Küche ist das Herzstück der Wohnung und lädt zu geselligen Abenden oder entspannten Stunden ein.
Ein besonderes Highlight ist der großzügige Balkon, der an sonnigen Tagen wie ein zusätzliches Wohnzimmer wirkt. Hier genießen Sie Ihren Morgenkaffee mit Ausblick oder lassen den Tag bei einem Glas Wein entspannt ausklingen.
Das stilvolle Badezimmer mit moderner Sanitärausstattung erfüllt höchste Ansprüche und sorgt mit seiner durchdachten Gestaltung für ein angenehmes Ambiente. Zusätzlich sorgt ein Personenaufzug für barrierearmen Zugang – bequem und komfortabel, gerade im Alltag ein unschätzbarer Vorteil.
Ein eigener PKW-Stellplatz direkt vor dem Gebäude gewährleistet stressfreies Parken, ohne lange Wege oder Parkplatzsuche.
Wohnflächenaufteilung:
Dachgeschosswohnung WE 10:
Flur-Eingang ca. 3,86 m²
Wohnzimmer/Küche ca. 30,70 m²
Schlafzimmer ca. 16,34 m²
Badezimmer ca. 8,72 m²
Hauswirtschaftsraum ca. 7,99 m²
Balkon anteilig ca. 4,35 m²
Seit 2021 leitet er in zweiter Generation das Unternehmen. Ralf Gründer ist Inhaber von Gründer Immobilien in Dörpen…
Alle Immobilien des MaklersBüro: 04963-914923
E-Mail: anfrage@gruender-immobilien.de
Objektnummer: 8476
Objektnummer: 8517
Provisionsfrei für Käufer! Hier beginnt Ihr neues Kapitel – stilvoll wohnen, herrlich leben!
Bei uns behalten Sie den Überblick . Im Benutzerbereich können SIe Ihre Objekte verwalten.