Charmanter Bungalow in familienfreundlicher Sackgassenlage – provisionsfrei erwerben!
Objektnummer: 8408#dxEpb5
235.000€
49779 Niederlangen, Deutschland
Zu Verkaufen
349.000€






















Neubau-Erstbezug in Niederlangen – Stilvoll, barrierefrei und zukunftssicher wohnen in ruhiger Sackgassenlage
In Niederlangen, in einer idyllischen und ruhigen Sackgassenendlage, entsteht aktuell ein attraktives Neubauprojekt, das modernes Wohnen mit zeitloser Architektur, gehobener Ausstattung und energieeffizienter Technik vereint. Dieser schlüsselfertige Bungalow in massiver Klinkerbauweise mit stilvollem Walmdach bietet Ihnen barrierefreies Wohnen auf einer Ebene – ideal für Senioren, Paare oder anspruchsvolle Einzelpersonen, die ein komfortables, ruhiges und gleichzeitig zentrumsnahes Zuhause suchen.
Komfort & Qualität im Detail:
Hochwertige Bauweise und moderne Technik
Das Haus wird massiv gebaut und verbindet traditionelle Bauweise mit zeitgemäßer Technik. Die moderne Luftwärmepumpe in Verbindung mit einer angenehmen Fußbodenheizung garantiert effizientes Heizen und ein gleichmäßiges Raumklima – nachhaltig, kostensparend und umweltfreundlich. Ein edles Klinkermauerwerk, ein stilvolles Walmdach und eine durchdachte Raumaufteilung runden das hochwertige Erscheinungsbild des Hauses ab.
Helle Räume mit Weitblick:
Großzügige, bodentiefe Fenster durchfluten alle Wohnbereiche mit Tageslicht und ermöglichen einen schönen Blick ins Grüne. Das Gefühl von Offenheit und Weite wird hier durch lichtdurchflutete Räume und eine angenehme Verbindung zur Natur verstärkt. Dank der elektrischen Rollläden lässt sich der Lichteinfall ganz nach Wunsch regulieren – für optimalen Komfort zu jeder Tageszeit.
Barrierefreiheit für jedes Lebensalter
Dieses Haus wurde konsequent barrierefrei geplant – mit schwellenlosen Übergängen, breiten Türen und einem komfortablen Tageslichtbad mit ebenerdiger Dusche. Die ebenerdige Ausführung ermöglicht ein selbstbestimmtes Wohnen – heute und in Zukunft.
Die Innenausstattung ist bezugsfertig: Wände tapeziert und gestrichen, Böden mit modernen Fliesen verlegt – einziehen und wohlfühlen!
Wohlfühloase im Freien
Der Außenbereich wird vollständig angelegt und umfasst eine gepflasterte Terrasse, die zum Entspannen einlädt. Die eingesäten Rasenflächen bieten Platz für Gartenmöbel, Blumenbeete oder eine gemütliche Sitzecke.
Ein massiv gemauerter Geräteraum am Carport ergänzt das Platzangebot ideal – für Gartengeräte, Fahrräder oder Werkzeuge. Ihr Fahrzeug steht geschützt im überdachten Carportbereich.
Zusätzlicher Stauraum durch ausgebautes Dachgeschoss
Über eine praktische Bodenauszugstreppe erreichen Sie das Dachgeschoss, das als zusätzlicher Stauraum genutzt werden kann – ideal für saisonale Gegenstände oder persönliche Erinnerungen.
Einziehen und ankommen – in Ihrem neuen Zuhause in Niederlangen
Dieses Objekt ist ideal für alle, die Wert auf Ruhe, Qualität, moderne Ausstattung und ein sicheres Wohnumfeld legen. Die ruhige Lage am Ende einer Sackgasse, die durchdachte Raumplanung und die hochwertige Ausstattung machen dieses Haus zu einem Zuhause, in dem man sich langfristig wohlfühlt.
Sichern Sie sich dieses attraktive Neubauangebot – kontaktieren Sie uns gerne für weitere Informationen oder einen persönlichen Besichtigungstermin. Wir freuen uns auf Ihre Anfrage!
Die Lage am Ende einer Sackgasse sorgt für ein hohes Maß an Privatsphäre, eine geringe Verkehrsbelastung und ein besonders entspanntes Wohnumfeld – ideal für alle, die die Ruhe lieben und dennoch gut angebunden wohnen möchten.
Niederlangen ist eine charmante Gemeinde im Landkreis Emsland, die durch ihre naturnahe Umgebung, freundliche Nachbarschaften und eine hohe Lebensqualität besticht. Hier wohnen Sie ruhig und sicher, umgeben von Wiesen, Feldern und kleinen Wäldern – ideal für alle, die das Landleben schätzen und gleichzeitig gut angebunden sein möchten.
Der Ort bietet eine angenehme Mischung aus ländlicher Idylle und praktischer Infrastruktur: Einkaufsmöglichkeiten, Schulen, Kindergärten, ärztliche Versorgung und Freizeiteinrichtungen finden sich in den umliegenden Orten, insbesondere im nur wenige Autominuten entfernten Dörpen, das ein regionales Versorgungszentrum darstellt.
Dank der Nähe zur Autobahn A31 und zur B70 erreichen Sie überregionale Ziele schnell und bequem – sei es Richtung Papenburg, Meppen oder ins Ruhrgebiet. Auch die niederländische Grenze ist nicht weit entfernt, was zusätzliche Möglichkeiten für Ausflüge oder Einkäufe bietet.
Wer Erholung sucht, findet sie direkt vor der Haustür: Spaziergänge, Radtouren oder Naturerkundungen entlang des Ems-Radweges oder durch die Emsauen sind hier fester Bestandteil des Alltags.
Fazit:
Niederlangen ist der perfekte Ort für alle, die in ruhiger, naturnaher Umgebung leben möchten – ohne auf eine gute Anbindung und wichtige Versorgungsangebote verzichten zu müssen. Besonders Familien, Senioren und Berufspendler finden hier ein ideales Wohnumfeld mit hoher Lebensqualität.
Ihre Vorteile auf einen Blick:
Ruhige Sackgassenendlage – ideal für entspannte Wohnqualität
Schlüsselfertiger Erstbezug – komplett bezugsfertig
Barrierefreies Wohnen auf einer Ebene
Luftwärmepumpe + Fußbodenheizung für effizientes Heizen
Bodentiefe Fenster, elektrische Rollläden
Modernes Tageslichtbad mit ebenerdiger Dusche
Carport mit massivem Geräteraum
Sonnige Terrasse & angelegter Gartenbereich
Dachboden mit zusätzlichem Stauraum
Energieausweis in Vorbereitung
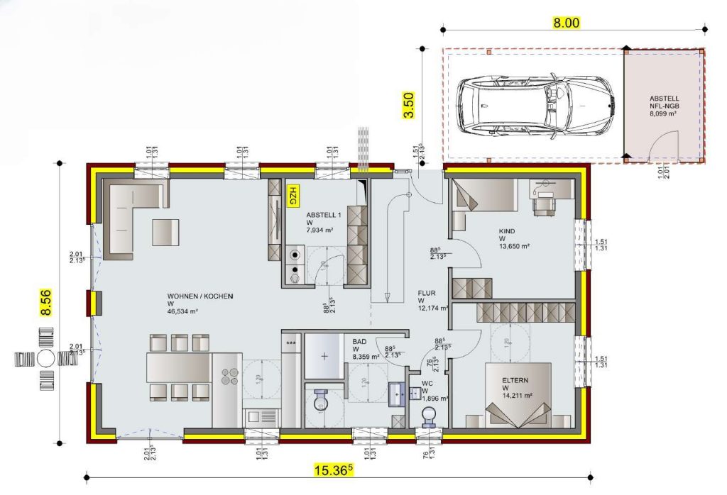
Wohnflächenaufteilung:
Erdgeschoss:
Diele ca. 8,738 m²
Gäste-WC ca. 1,837 m²
Wohn-/Esszimmer/Küche ca. 48,372 m²
Schlafzimmer ca. 14,210 m²
Schlafzimmer ca. 12,907 m²
Badezimmer ca.8,762 m²
Abstellraum ca. 7,098 m²
Nutzflächenaufteilung:
Dachgeschoss:
Stauraum/Abstellfläche ca. 43,94 m²
Massiver Geräteraum ca. 13,979 m²
Carport ca. 38,126 m²
Seit 2021 leitet er in zweiter Generation das Unternehmen. Ralf Gründer ist Inhaber von Gründer Immobilien in Dörpen…
Alle Immobilien des MaklersBüro: 04963-914923
E-Mail: anfrage@gruender-immobilien.de
Objektnummer: 8408#dxEpb5
Objektnummer: 8468#dxEpb5
Charaktervolles Anwesen mit Gaststätte, Ferienwohnungen, PV-Anlage – ein Platz zum Leben u. Träumen
Bei uns behalten Sie den Überblick . Im Benutzerbereich können SIe Ihre Objekte verwalten.