Wohnen auf einer Ebene – komfortabel, gepflegt und einfach zum Wohlfühlen
Objektnummer: 8487#dxEpb5
222.000€
49774 Lähden, Deutschland
Zu Verkaufen
289.000€

















Moderne Neubau-Doppelhaushälfte – Stilvolles Wohnen auf einer Ebene in ruhiger Lage von Lähden-Holte Lastrup
Zum Verkauf steht eine hochwertig gebaute, barrierearme Doppelhaushälfte (Neubau), die modernen Wohnkomfort mit durchdachter Architektur vereint. Die im Oktober 2025 fertiggestellte Immobilie überzeugt durch eine energiesparende Bauweise nach KfW-Standard, lichtdurchflutete Räume und eine komfortable Ausstattung, die das Wohnen besonders angenehm gestaltet.
Mit einer Wohnfläche von ca. 74 m² bietet das Haus die ideale Größe für Singles, Paare oder Ruheständler, die Wert auf stilvolles und pflegeleichtes Wohnen legen. Das durchdachte Raumkonzept schafft eine gemütliche und zugleich moderne Wohnatmosphäre.
Die Immobilie ist bezugsfertig und kann nach Vereinbarung kurzfristig übernommen werden.
Profitieren Sie von einem modernen Zuhause, das Komfort, Energieeffizienz und Wohlfühlatmosphäre perfekt vereint.
Diese Doppelhaushälfte ist mehr als nur ein Haus – sie ist ein Ort zum Wohlfühlen, Ankommen und Entspannen.
Hier verbinden sich moderne Architektur, hochwertige Ausstattung und eine ruhige Lage zu einem harmonischen Gesamtbild, das Lebensqualität verspricht.
Ob als komfortabler Altersruhesitz, stilvolles Zuhause für zwei oder wertbeständige Kapitalanlage – dieses Objekt erfüllt viele Wünsche. Die barrierearme Bauweise sorgt für Sicherheit und Flexibilität in jeder Lebensphase, während die energiesparende Technik für niedrige Betriebskosten und ein gutes Gewissen sorgt.
Genießen Sie sonnige Stunden auf Ihrer Terrasse, entspannte Abende im offenen Wohnbereich und das gute Gefühl, in einem modernen, durchdachten Zuhause zu leben. Ein Haus, das mit seiner klaren Struktur, Funktionalität und Wärme überzeugt – ein echtes Zuhause mit Zukunft.
Diese ansprechende Doppelhaushälfte befindet sich in einer ruhigen und gepflegten Wohngegend mit gewachsener Nachbarschaft. Einkaufsmöglichkeiten, Ärzte, Schulen und öffentliche Verkehrsmittel sind in wenigen Minuten erreichbar.
Lähden-Holte Lastrup ist ein idyllischer Ortsteil der Samtgemeinde Herzlake im schönen Emsland. Die Umgebung ist geprägt von viel Grün, einer intakten Dorfgemeinschaft und einer angenehmen Ruhe – ideal für alle, die das entspannte Landleben mit einer guten Infrastruktur verbinden möchten.
Einkaufsmöglichkeiten, Ärzte, Schulen und Freizeiteinrichtungen sind in wenigen Minuten erreichbar. Die Nähe zu den Städten Herzlake, Haselünne und Meppen sorgt für eine gute Anbindung und kurze Wege zu allem, was man im Alltag braucht.
Ob Spaziergänge durch Wiesen und Wälder, Fahrradtouren auf gut ausgebauten Wegen oder gesellige Dorffeste – in Lähden-Holte Lastrup lässt sich das Leben genießen. Ein Ort, der Ruhe, Natur und Gemeinschaft auf harmonische Weise vereint.
Diese Doppelhaushälfte wurde mit viel Liebe zum Detail und einem hohen Anspruch an Qualität geplant und gebaut. Die Ausstattung überzeugt durch ihre klare Linie, Funktionalität und ein modernes, helles Ambiente.
Wohnfläche: ca. 74 m²
Optimal aufgeteilt auf großzügige, lichtdurchflutete Räume mit offenem Wohnkonzept und kurzen Wegen – perfekt für komfortables Wohnen auf einer Ebene.
Grundstück: ca. 315 m²
Das pflegeleichte Grundstück bietet Ihnen genug Raum für Erholung im Freien, ohne viel Aufwand bei der Gartenpflege.
Baujahr: 2025 – Erstbezug
Sie ziehen als Erster ein und genießen alle Vorzüge eines Neubaus – modernste Technik, hochwertige Materialien und zeitgemäße Energieeffizienz.
Wohn- und Essbereich mit Wohlfühlfaktor
Der großzügige, lichtdurchflutete Wohnraum mit bodentiefen Fenstern schafft eine freundliche und offene Atmosphäre. Von hier aus gelangen Sie direkt auf die sonnige Südterrasse – der ideale Platz, um den Tag bei einem Kaffee oder Grillabend ausklingen zu lassen.
Offene Küche mit Gestaltungsspielraum
Die offene Küchenlösung sorgt für ein kommunikatives Wohngefühl und kann ganz nach Ihren Wünschen mit einer modernen Einbauküche ausgestattet werden. Ob Kochinsel oder klassisch – hier entstehen Genussmomente.
Geräumiges Schlafzimmer
Das Schlafzimmer bietet ausreichend Platz für einen großen Kleiderschrank und einen gemütlichen Rückzugsort. Die ruhige Lage sorgt für erholsamen Schlaf und Entspannung.
Modernes Badezimmer mit Wellnesscharakter
Hochwertige Sanitärobjekte, eine ebenerdige, barrierefreie Dusche, moderne Badmöbel und geschmackvolle Fliesen schaffen hier eine kleine Wellnessoase.
Separates Gäste-WC
Praktisch für Besucher oder den Alltag – stilvoll und funktional gestaltet.
Fußbodenheizung in allen Räumen
Angenehme Wärme, gleichmäßig verteilt – für ein behagliches Wohnklima zu jeder Jahreszeit.
Effiziente Heiztechnik mit moderner Luft-Wärmepumpe
Die Beheizung erfolgt über eine umweltfreundliche Luft-Wärmepumpe, die für niedrige Energiekosten und ein nachhaltiges Wohngefühl sorgt. In Kombination mit der Fußbodenheizung genießen Sie effiziente, gleichmäßige Wärme und einen hohen Wohnkomfort.
Energiesparende Bauweise nach KfW-Standard
Profitieren Sie von moderner Heiztechnik, effizienter Wärmedämmung und niedrigen Nebenkosten – ein Plus für Umwelt und Geldbeutel.
Barrierearme Ausstattung
Breite Türen, ebenerdige Dusche und schwellenlose Übergänge machen das Wohnen komfortabel – auch im Alter oder bei eingeschränkter Mobilität.
Sonnige Terrasse & Garten in Südausrichtung
Ideal für Sonnenliebhaber: Genießen Sie den Tag auf Ihrer Terrasse oder gestalten Sie den Garten nach Ihren individuellen Vorstellungen.
Carport mit Geräteraum & Stellplatz
Ihr Auto steht sicher und wettergeschützt, während der Geräteraum zusätzlichen Stauraum für Fahrräder, Gartengeräte oder Hobbybedarf bietet.
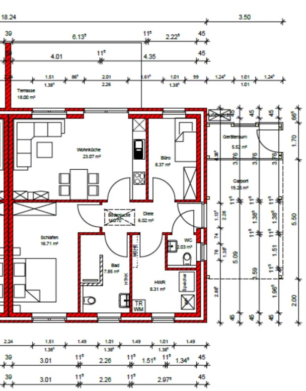
Wohnflächenaufteilung:
Erdgeschoss:
Flur ca. 6,02 m²
Wohnen/Küche ca. 23,07 m²
Schlafzimmer ca. 16,71 m²
Gäste/Büro ca. 8,37 m²
Badezimmer ca. 7,85 m²
Gäste-WC ca. 2,03 m²
Hauswirtschaftsraum ca. 8,31 m²
Nutzfläche:
Carport ca. 19,25 m²
Geräteraum ca.5,52 m²
Seit 2021 leitet er in zweiter Generation das Unternehmen. Ralf Gründer ist Inhaber von Gründer Immobilien in Dörpen…
Alle Immobilien des MaklersBüro: 04963-914923
E-Mail: anfrage@gruender-immobilien.de
Objektnummer: 8487#dxEpb5
Objektnummer: 8488#dxEpb5
Attraktive Kapitalanlage: Gepflegtes Mehrfamilienhaus mit 4 vermieteten Wohnungen in Lingen-Bramsche
Bei uns behalten Sie den Überblick . Im Benutzerbereich können SIe Ihre Objekte verwalten.