Ein Haus mit Geschichte – und Platz für Ihre Zukunft
Objektnummer: 8490#dxEpb5
130.000€
26907 Walchum, Deutschland
Zu Verkaufen
328.000€




































Stilvoller Walmdachbungalow in ruhiger Wohnlage von Walchum – Wohnen auf einer Ebene in naturnaher Umgebung
In einer angenehm ruhigen Wohnsiedlung von Walchum, umgeben von Wald- und Seenlandschaft, präsentiert sich dieser weiße Walmdachbungalow als gepflegtes und komfortables Zuhause für alle, die Wert auf ebenerdiges Wohnen, ein großzügiges Raumangebot und eine hohe Wohnqualität legen. Das im Jahr 1995 errichtete Wohnhaus befindet sich auf einem ca. 747 m² großen Grundstück und bietet mit einer Wohnfläche von rund 140 m² ideale Voraussetzungen sowohl für Paare, Familien als auch für seniorengerechtes Wohnen.
Die Immobilie präsentiert sich insgesamt in einem sehr guten und gepflegten Zustand. Beheizt wird das Haus über eine Erdgasheizung. Für Fahrzeuge stehen sowohl eine Garage als auch ein Carport zur Verfügung, sodass ausreichend Stellfläche vorhanden ist.
Die Lage verbindet Ruhe und Naturnähe mit einer hervorragenden Infrastruktur. Einkaufsmöglichkeiten, Grundschule, Kindergarten, ärztliche Versorgung sowie weitere Einrichtungen des täglichen Bedarfs befinden sich in unmittelbarer Nähe und sind bequem erreichbar. Die wald- und seenreiche Umgebung lädt zu Spaziergängen, Radtouren und erholsamen Stunden in der Natur ein.
Dieser Walmdachbungalow vereint komfortables Wohnen auf einer Ebene, eine attraktive Lage und ein gepflegtes Gesamtbild – ein Zuhause, das sowohl heute als auch langfristig überzeugt.
Gerne stellen wir Ihnen diese besondere Immobilie im Rahmen einer persönlichen Besichtigung näher vor.
Walchum – naturnah wohnen mit hoher Lebensqualität
Walchum ist eine idyllische und zugleich gut angebundene Gemeinde im nördlichen Emsland, die insbesondere für ruhesuchende Menschen, Familien und Senioren eine hohe Lebensqualität bietet. Geprägt von einer reizvollen Landschaft aus Wäldern, Seen und Wasserläufen, lädt die Umgebung zu ausgedehnten Spaziergängen, Radtouren und erholsamen Stunden in der Natur ein. Der nahegelegene Dörpener See sowie zahlreiche Grünflächen machen Walchum zu einem beliebten Wohnort für alle, die naturnah leben und dennoch nicht auf Komfort verzichten möchten.
Der Ort selbst überzeugt durch eine gewachsene, gepflegte Infrastruktur. Einkaufsmöglichkeiten für den täglichen Bedarf, ärztliche Versorgung, eine Grundschule, ein Kindergarten sowie weitere Einrichtungen befinden sich vor Ort oder in unmittelbarer Nähe und sind bequem erreichbar. Kurze Wege und ein überschaubares Ortsbild sorgen für ein angenehmes, entspanntes Wohnumfeld.
Besonders geschätzt wird Walchum für seine ruhigen Wohnsiedlungen mit überwiegend Einfamilienhäusern und Bungalows. Diese Struktur macht den Ort ideal für seniorengerechtes Wohnen, generationsübergreifendes Zusammenleben und ein selbstbestimmtes Leben im Alter. Gleichzeitig profitieren Bewohner von einer guten Verkehrsanbindung an die umliegenden Orte und Städte der Region, sodass auch größere Einkaufszentren, Fachärzte oder kulturelle Angebote schnell erreichbar sind.
Walchum verbindet ländliche Ruhe mit funktionaler Nähe zum täglichen Leben – ein Wohnort, der Beständigkeit, Sicherheit und Lebensqualität bietet und sich ideal für Menschen eignet, die ein harmonisches Umfeld mit hohem Erholungswert schätzen.
Bereits beim Betreten des Hauses wird der durchdachte Grundriss deutlich. Der großzügige Wohnbereich bildet das Herzstück des Bungalows und überzeugt durch seine Offenheit, Helligkeit und Gemütlichkeit. Ein Kamin sorgt hier für eine behagliche Atmosphäre an kühleren Tagen, während der direkte Zugang zur sonnigen Gartenterrasse den Wohnraum harmonisch ins Freie erweitert. Der liebevoll angelegte Garten bietet ausreichend Platz für Erholung, Freizeit und gesellige Stunden im Grünen.
Die moderne Einbauküche ist bereits im Kaufpreis enthalten und fügt sich funktional wie optisch in das Gesamtbild des Hauses ein. Kurze Wege und ein angenehmes Raumgefühl machen das Kochen hier besonders komfortabel. Der Wohnbereich ist zeitlos gefliest und unterstreicht den gepflegten Zustand der Immobilie.
Im Erdgeschoss stehen zwei gut geschnittene Schlafzimmer zur Verfügung, die sich flexibel als Schlaf-, Gäste- oder Arbeitszimmer nutzen lassen. Die Schlafzimmer sind mit Laminat ausgestattet und bieten eine ruhige Rückzugsmöglichkeit. Das moderne Badezimmer erfüllt hohe Ansprüche an Komfort und Funktionalität: Eine Badewanne, eine ebenerdige Dusche sowie geschmackvolle Badmöbel sorgen für Wohlfühlambiente und machen das Haus besonders attraktiv für barrierefreies und seniorengerechtes Wohnen. Ergänzt wird das Raumangebot im Erdgeschoss durch ein separates Gäste-WC.
Ein besonderes Highlight ist das ausgebaute Dachgeschoss. Hier befindet sich ein großzügiges Studiozimmer mit einer Fläche von ca. 30 m², das sich ideal als Atelier, Homeoffice, Hobbyraum oder zusätzliches Schlafzimmer eignet und dem Haus eine weitere, vielseitig nutzbare Ebene verleiht.
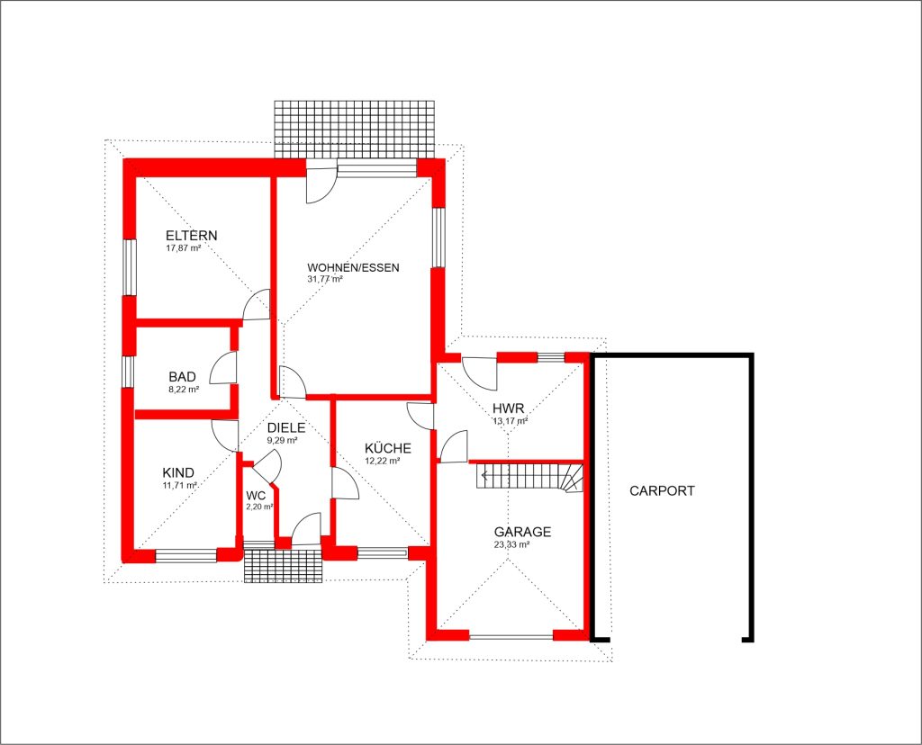
Wohnflächenaufteilung:
Erdgeschoss:
Diele ca. 9,29 m²
Wohn-Esszimmer ca. 31,77 m²
Küche ca. 12,22 m²
Schlafzimmer ca. 17,87 m²
Schlafzimmer ca. 11,71 m²
Badezimmer ca. 8,09 m²
Gäste-WC ca. 2,20 m²
Hauswirtschaftsraum ca. 13,17 m²
Dachgeschoss:
Flur ca. 4,00 m²
Studiozimmer ca. 30,00 m²
Nutzflächen:
Garage und Carport
Seit 2021 leitet er in zweiter Generation das Unternehmen. Ralf Gründer ist Inhaber von Gründer Immobilien in Dörpen…
Alle Immobilien des MaklersBüro: 04963-914923
E-Mail: anfrage@gruender-immobilien.de
Objektnummer: 8490#dxEpb5
Objektnummer: 8496#dxEpb5
Traumhaft leben am Wasser: Ihr Rückzugsort mit Urlaubsfeeling
Bei uns behalten Sie den Überblick . Im Benutzerbereich können SIe Ihre Objekte verwalten.