Provisionsfrei für Käufer! Stilvolle Eleganz trifft Wohnqualität – Ihr Traum-Bungalow
Objektnummer: 8509
475.000€
26907 Walchum, Deutschland
Zu Verkaufen
449.000€











































Exklusiver Walmdachbungalow in Walchum – Provisionsfrei für Käufer!
Ein Zuhause, das keine Wünsche offenlässt!
Willkommen in Ihrem neuen Traumhaus! Dieser im Jahr 2003 erbaute, außergewöhnlich gepflegte Walmdachbungalow begeistert durch seine großzügige Wohnfläche von rund 225 m² auf zwei Ebenen, seine hochwertige Ausstattung und eine Vielzahl an technischen Raffinessen, die Wohnen auf höchstem Niveau garantieren.
Bereits beim Betreten spürt man, dass hier mit viel Liebe zum Detail und Sinn für Qualität geplant wurde. Eine durchdachte Raumaufteilung, edle Materialien und modernste Technik schaffen ein Wohnambiente, das Komfort und Stil perfekt vereint.
Der lichtdurchflutete Wohn- und Essbereich bildet das Herzstück des Hauses. Hier sorgt ein moderner Marmor-Kaminofen für wohlige Wärme und eine gemütliche Atmosphäre. Auch technisch ist das Haus bestens ausgestattet: eine effiziente Brennwerttherme mit Fernbedienung, elektrische Markise zur Gartenseite sowie elektrische Rollläden und Insektenschutzgitter an allen Fenstern lassen keine Wünsche offen. Die Hauseingangstür mit Sprechanlage unterstreicht den exklusiven Anspruch dieser Immobilie.
Das Schlafzimmer im Erdgeschoss ist ein echtes Highlight – großzügig gestaltet, mit luxuriösem Bad en Suite und begehbarem Ankleidezimmer inklusive Einbauschränken. Hier genießen Sie jeden Tag das Gefühl, in einem kleinen Wellnesshotel zu wohnen. Insgesamt bietet der Bungalow drei Schlaf- bzw. Gästezimmer und damit ausreichend Platz für Familie, Freunde oder Hobby.
Ein hochwertiger Bungalow in Bestlage von Walchum, der mit Komfort, Qualität und Stil begeistert. Provisionsfrei für Käufer!
Vereinbaren Sie noch heute einen Besichtigungstermin – dieses Objekt wird Sie begeistern!
Lagebeschreibung – Leben, wo andere Urlaub machen
Die charmante Gemeinde Walchum liegt im wunderschönen Emsland und besticht durch ihre idyllische, naturnahe Lage sowie eine hervorragende Lebensqualität. Wer Ruhe, Natur und ein freundliches Miteinander schätzt, wird sich hier sofort zuhause fühlen.
Eingebettet zwischen Wiesen, Wäldern und dem Emsufer bietet Walchum eine Umgebung, die zu Spaziergängen, Fahrradtouren und erholsamen Stunden im Grünen einlädt. Besonders beliebt ist der nahegelegene Badesee Walchum, ein Paradies für Naturfreunde und Familien – hier lässt sich der Feierabend oder das Wochenende entspannt genießen.
Trotz der ruhigen Atmosphäre ist die Gemeinde verkehrstechnisch gut angebunden. Die umliegenden Orte Dörpen, Sustrum oder Heede sind in wenigen Minuten erreichbar und bieten vielfältige Einkaufsmöglichkeiten, Ärzte, Schulen und Kindergärten.
Walchum vereint das beste aus zwei Welten – ländliche Idylle und moderne Lebensqualität. Ein idealer Ort für alle, die Wohnen im Grünen lieben, aber dennoch nicht auf Komfort und Nähe zur Infrastruktur verzichten möchten.
Bodenbeläge:
In sämtlichen Räumen, inklusive Doppelgarage und Studiozimmer im DG, wurden hochwertige, moderne und zeitlose Bodenfliesen verlegt – pflegeleicht, elegant und langlebig.
Küche:
Ein Paradies für alle Hobbyköche! Die maßgefertigte Einbauküche mit hochwertigen Siemens-Einbaugeräten lässt keine Wünsche offen. Neben einem Induktionskochfeld und einem Großraum-Geschirrspüler steht Ihnen ein Kühlschrank mit 319 Litern Fassungsvermögen zur Verfügung. Die Vollauszug-Unterschränke sorgen für höchsten Komfort im täglichen Gebrauch – hier wird Kochen zum Erlebnis!
Bäder:
Im Erdgeschoss erwartet Sie ein exklusives Bad en Suite mit einer extragroßen Dusche (100 x 180 cm) mit Piana Slide Vario Gleittür, Bidet, wandhängendem WC und einem Doppelwaschbecken mit edlen Badmöbeln.
Auch das Badezimmer im Obergeschoss präsentiert sich modern und stilvoll mit Duschkabine, Handwaschbecken samt Spiegelschrank und wandhängendem WC. Zusätzlich steht ein separates Gäste-WC im Erdgeschoss zur Verfügung.
Garage:
Auch hier zeigt sich die Liebe zum Detail: Die komplett geflieste Doppelgarage verfügt über zwei elektrische Sektionaltore, direkten Zugang ins Haus sowie Hobby-, Geräte- und Hauswirtschaftsraum. So finden nicht nur Ihre Fahrzeuge, sondern auch Werkzeuge und Freizeitutensilien reichlich Platz.
Grundstück:
Das 753 m² große, komplett eingefriedete Grundstück ist ein echter Blickfang. Eine elegante, zweiflügelige Toreinfahrt führt zu den Garagen, während die Zufahrt und der Eingangsbereich mit gerumpelten Pflastersteinen gestaltet sind. Die großzügige Sonnenterrasse lädt zum Entspannen ein – hier genießen Sie Ihre Freizeit mit Blick auf den pflegeleicht angelegten Garten mit Ziersträuchern und Kieselbeeten.
Wohnflächen und Nutzaufteilung:
Erdgeschoss:
Diele ca. 19,02 m²
Gäste-WC ca. 3,92 m²
Wohn-/Esszimmer ca. 43,62 m²
Küche ca. 16,25 m²
Büro ca. 13,56
Schlafzimmer ca. 17,51 m²
Bad En Suite ca. 10,51 m²
Ankleidezimmer ca. 7,43 m²
HWR ca. 15,33 m²
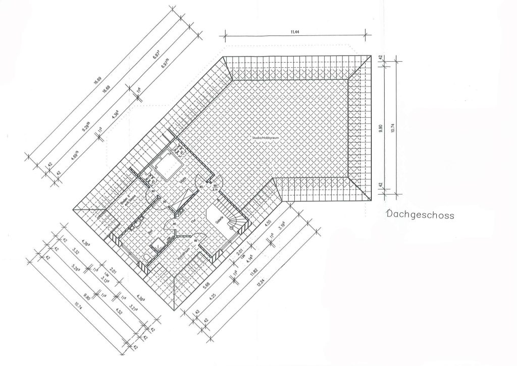
Obergeschoss:
Flur ca. 12,26 m²
Schlafzimmer ca. 19,17 m²
Badezimmer ca. 13,46 m²
Bodenraum II ca. 7,15 m²
Studiozimmer ca. 54,93 m²
Abstellraum ca. 5,77 m²
Nutzflächen:
Doppelgarage ca. 46,14 m²
Hobbyraum ca. 11,93 m²
Geräteraum ca. 7,78 m²
Seit 2021 leitet er in zweiter Generation das Unternehmen. Ralf Gründer ist Inhaber von Gründer Immobilien in Dörpen…
Alle Immobilien des MaklersBüro: 04963-914923
E-Mail: anfrage@gruender-immobilien.de
Objektnummer: 8509
Objektnummer: 8035
Provisionsfrei für Käufer! Exklusivität pur – extravagante Neubauvilla!
Bei uns behalten Sie den Überblick . Im Benutzerbereich können SIe Ihre Objekte verwalten.