Käufer Provisionsfrei! Nordseenah & barrierearm – solider Bungalow mit Gestaltungsspielraum
Objektnummer: 8496#dxEpb5
236.000€
49740 Haselünne, Deutschland
Zu Verkaufen
390.000€













Provisionsfrei für den Käufer: Dieser exklusive und komfortable Neubau-Satteldachbungalow wird auf einem Grundstück Ihrer Wahl im Emsland oder in Ostfriesland errichtet – alternativ auch auf einem von Ihnen bereitgestellten Grundstück. Der ausgewiesene Kaufpreis bezieht sich ausschließlich auf das Wohnhaus; das Grundstück ist nicht Bestandteil des Kaufpreises.
Das großzügig konzipierte Wohnhaus überzeugt durch eine anspruchsvolle Architektur und zahlreiche repräsentative Details. Offenheit, natürliche Lichtführung und eine moderne, elegante Gestaltung prägen den besonderen Charakter dieser Traumimmobilie. Bereits im Dielenbereich befindet sich eine vorbereitete Aussparung in der Betondecke, die den Einbau einer stilvollen Treppe ermöglicht. Das Dachgeschoss mit einer Fläche von ca. 70 m² bietet zudem wertvolle Ausbaureserven und eröffnet vielfältige Nutzungsmöglichkeiten.
Der großzügige Eingangs- und Empfangsbereich bildet das Zentrum des Hauses. Von hier gelangen Sie einerseits in den privaten Schlaftrakt, andererseits in den weitläufigen, offen gestalteten Küchen-, Wohn- und Essbereich. Ein markantes Highlight ist die offene Decke bis in die Dachspitze, die dem Wohnraum ein beeindruckendes Raumgefühl verleiht. Die große bodentiefe Glasfront schafft eine harmonische Verbindung zum Garten und sorgt für einen ungehinderten Blick ins Grüne. Alle rückwärtigen Fenster- und Türelemente werden bodentief ausgeführt. Die überdachte Gartenterrasse ist direkt vom Wohnbereich aus zugänglich.
Der durchdachte Grundriss umfasst zwei Schlafzimmer, ein komfortables, großzügiges Badezimmer sowie ein zusätzliches Gäste-WC. Der Bungalow wird komplett schlüsselfertig inklusive Malerarbeiten und angelegtem Garten übergeben. Bei der Ausführung wird höchster Wert auf solide, hochwertige und energieeffiziente Bauqualität gelegt.
Energieausweis: In Vorbereitung.
Grundsätzlich realisieren wir unsere Gebäude als klimafreundliche Neubauten nach Effizienzhausstandard EH40.
Bodenbeläge:
Der gesamte Erdgeschossbereich kann nach Wahl mit Domesticböden oder mit einer hochwertigen und großformatigen Bodenfliese bestückt werden, klasse Optik. Die Schlafräume werden mit Domesticböden oder nach Wunsch ebenfalls mit Fliesenböden bestückt. Das Badezimmer kann auch nach Wahl mit einer Fliese bestückt werden. Die Fußbodenheizung wird separat von jedem Raum aus geregelt.
Küche:
Der Küchenbereich ist zum Wohn/Esszimmer hin offen gestaltet. Angrenzend an der Küche befindet sich der Hauswirtschaftsraum. Kurze und durchdachte Wege. Im Hauswirtschaftsraum befindet sich eine Seiteneingangstür mit Zugang zum Carport. Gerne sind wir Ihnen auch bei der Wahl einer neuen Einbauküche behilflich. Unser Küchen – Studio wird Sie auch in diesem Punkt professionell beraten
Bäder:
Das Top exklusive Badezimmer wird wie folgt ausgestattet: Wannenanlage, Waschbecken mit Halbsäule (Ablagefläche), bodentiefe Dusche, Hänge WC, deckenhohe und sehr geschmackvolle Verfliesung. Hochwertige Elemente und Armaturen. Das Gäste Dusch/WC wird gleichwertig ausgestattet, Hänge WC, Waschbecken mit Halbsäule sowie eine geschmackvolle Verfliesung.
Garage:
Großzügiger massiv gemauerter Carport mit angrenzenden massiven Geräteraum. Dieser bietet viel Platz für Gartengeräte und Fahrräder.
Grundstück:
Das Gartengrundstück wird komplett pflegeleicht angelegt. Die Freiflächen werden mit Rasensaat versehen. Die Grundstücksgrenzen werden mit einer Lorbeerhecke eingefriedet. Die Hoffläche sowie die Gartenterrasse werden großflächig und einheitlich gepflastert.
Dieser moderne Neubau Satteldachbungalow wird in einer hochwertigen Bauweise komplett schlüsselfertig nach BEG EH40 Standard erstellt. Eine ausführliche Baubeschreibung zum Objekt sowie eine aussagekräftige Bauzeichnung können wir Ihnen gerne bei Bedarf per Mail oder auf dem Postweg zukommen lassen. Lassen Sie sich bei einer Besichtigung von uns inspirieren damit Ihr Traum vom Eigenheim wahr wird. Bei weiteren Fragen steht Ihnen das Gründer-Immobilienmakler Team aus Dörpen im Emsland jeder Zeit zur Verfügung!
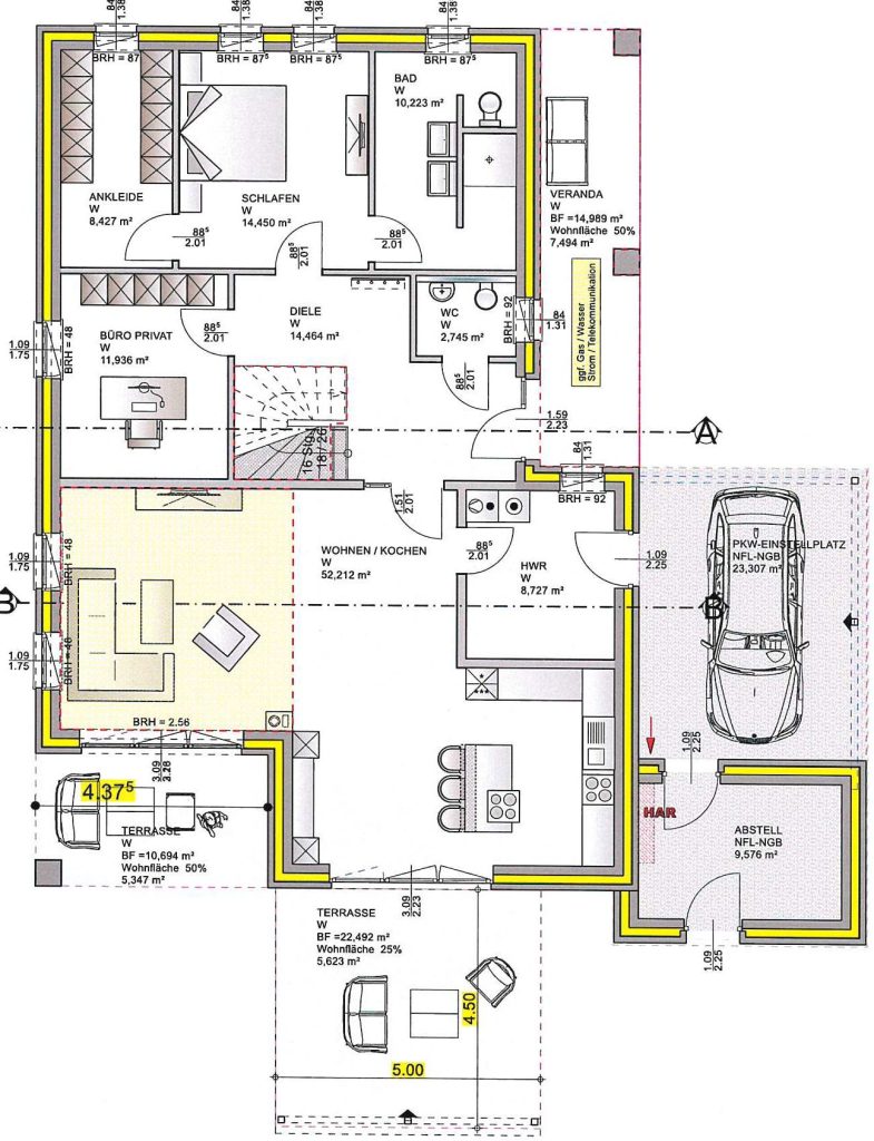
Wohnflächenaufteilung:
Erdgeschoss:
Diele ca. 14,46 m²
Gäste WC ca. 2,74 m²
Badezimmer ca. 10,22 m²
Küche/Wohn/Essbereich ca. 52,21 m²
Schlafen I ca. 14,45 m²
Ankleide ca. 8,42 m²
Schlafen II ca. 11,93 m²
HWR ca. 8,72 m²
Dachgeschoss:
Ausbaureserve ca. 70,00 m²
Seit 2021 leitet er in zweiter Generation das Unternehmen. Ralf Gründer ist Inhaber von Gründer Immobilien in Dörpen…
Alle Immobilien des MaklersBüro: 04963-914923
E-Mail: anfrage@gruender-immobilien.de
Objektnummer: 8496#dxEpb5
Objektnummer: 8486#dxEpb5
Klimafreundliche Exklusivität – Winkelwalmdachbungalow
Bei uns behalten Sie den Überblick . Im Benutzerbereich können SIe Ihre Objekte verwalten.