Käufer Provisionsfrei! Nordseenah & barrierearm – solider Bungalow mit Gestaltungsspielraum
Objektnummer: 8496#dxEpb5
236.000€
49770 Herzlake, Deutschland
Zu Verkaufen
439.000€

























Provisionsfrei für Käufer: Ihr Traum vom Wohnen am See nimmt Gestalt an
In traumhafter Lage – nur wenige Schritte vom See entfernt – entsteht derzeit dieser exklusive Winkelwalmdachbungalow im idyllischen Herzlake im Emsland. Die hochwertige Neubauimmobilie vereint modernen Wohnkomfort mit energieeffizienter Bauweise und wird nach Fertigstellung schlüsselfertig an Sie übergeben. Sämtliche Bauleistungen wie Malerarbeiten, Fliesenverlegung und die Gartengestaltung sind im Kaufpreis bereits enthalten – Sie müssen sich um nichts kümmern!
Mit ca. 110 m² ebenerdiger Wohnfläche eignet sich das Haus ideal für jede Lebensphase und ist insbesondere auch für barrierefreies sowie seniorengerechtes Wohnen ausgelegt. Zusätzlich bietet das teilausgebaute Dachgeschoss wertvolle Raumreserven für Ihre individuellen Wünsche – sei es als Büro, Hobbyraum oder Gästezimmer.
Technisch wird das Haus auf dem neuesten Stand errichtet: Eine moderne Luft-Wärmepumpe, Fußbodenheizung in allen Räumen sowie eine vorbereitete Vorrichtung für eine Photovoltaikanlage sorgen für nachhaltige Energieeffizienz. Ein Glasfaseranschluss garantiert zudem Highspeed-Internet – perfekt für Homeoffice oder entspanntes Streaming.
Große, lichtdurchflutete Räume mit 3-fach-verglasten Kunststofffenstern und elektrischen Rollläden schaffen eine behagliche Wohnatmosphäre.
Der aktuelle Stand:
Das Objekt befindet sich derzeit in der Bauphase. Der geplante Fertigstellungstermin rückt näher – sichern Sie sich schon jetzt Ihr neues Zuhause am Wasser.
Fazit:
Diese Neubauimmobilie verbindet hochwertige Ausstattung, durchdachte Architektur und eine einmalige Lage direkt am See. Profitieren Sie von einem exzellenten Preis-Leistungs-Verhältnis und sichern Sie sich Ihr neues Zuhause bereits während der Bauphase.
Das Team von Gründer Immobilien in Dörpen im Emsland steht Ihnen gerne für Fragen oder eine persönliche Beratung zur Verfügung.
Ruhige, naturnahe Südlage in unmittelbarer See- und Hasenähe. Direkter Seeblick! Stadtkern nur 5 Min. entfernt.
Herzlake ist eine charmante Gemeinde im Landkreis Emsland in Niedersachsen und bietet eine attraktive Mischung aus ländlichem Charme, Naturverbundenheit und praktischer Infrastruktur. Mit etwa 4.000 Einwohnern ist Herzlake ein ruhiger Wohnort, der dennoch über alles Notwendige für den Alltag verfügt.
Naturnahe Umgebung
Herzlake liegt inmitten einer idyllischen Landschaft aus Wäldern, Wiesen und Seen. Die Umgebung ist ideal für Outdoor-Aktivitäten wie Wandern, Radfahren, Angeln und Reiten. Besonders der Hase-Ems-Weg und die Seenlandschaft laden zu Freizeitaktivitäten und Erholung ein.
Familienfreundlichkeit
Die Gemeinde ist bekannt für ihre kinderfreundliche Atmosphäre. Es gibt mehrere Kindergärten und eine Grundschule vor Ort. Weiterführende Schulen sind in umliegenden Städten wie Meppen oder Haselünne gut erreichbar. Die sichere und ruhige Umgebung macht Herzlake besonders attraktiv für Familien.
Infrastruktur
Herzlake bietet eine gute Grundversorgung mit Geschäften des täglichen Bedarfs, Ärzten, Apotheken und gastronomischen Einrichtungen. Größere Städte wie Meppen oder Cloppenburg sind in kurzer Zeit mit dem Auto erreichbar, was die Region gut anbindet.
Lebensqualität
Die Kombination aus natürlicher Schönheit, Ruhe und einem aktiven Gemeindeleben macht Herzlake zu einem Ort mit hoher Lebensqualität. Besonders Menschen, die einen Ausgleich zum hektischen Stadtleben suchen, fühlen sich hier wohl.
Bodenbeläge:
Im gesamten Haus werden hochwertige, großformatige Fliesen verlegt, die für eine elegante und zeitlose Optik sorgen. In Verbindung mit der Fußbodenheizung entsteht ein behagliches Wohngefühl zu jeder Jahreszeit.
Küche und Hauswirtschaftsraum:
Die offene Küche wird direkt an den praktischen Hauswirtschaftsraum angrenzen, von dem aus Sie bequem in die Garage gelangen. Auf Wunsch unterstützen wir Sie gerne bei der Planung einer stilvollen Einbauküche – unser Partner-Küchenstudio berät Sie individuell und modern.
Bäder:
Das Badezimmer wird exklusiv ausgestattet – mit bodentiefer Dusche, Badewanne, modernem Waschtisch mit Möbel, wandhängendem WC und geschmackvoller, deckenhoher Verfliesung. Für Gäste ist ein separates WC vorgesehen. Hochwertige Armaturen und sorgfältig ausgewählte Materialien unterstreichen den gehobenen Anspruch.
Garage:
Zum Haus gehört eine massive Garage mit weißem, elektrisch betriebenem Sektionaltor. Optional kann auf dem Grundstück ein Stellplatz für Wohnmobil oder Wohnwagen geschaffen werden.
Grundstück & Außenbereich:
Nach Fertigstellung wird das Gartengrundstück liebevoll angelegt: Die Rasenflächen eingesät, die Grundstücksgrenzen mit einer gepflegten Hecke eingefasst. Umlaufende Pflasterwege, eine großzügige Hoffläche sowie eine teilüberdachte Terrasse laden zum Entspannen im Freien ein.
Aufteilung:
Erdgeschoss:
Flur ca. 15,48 m²
Gäste-WC ca. 2,33 m²
Küche ca. 14,48 m²
Wohn-/Esszimmer ca. 34,53 m²
Hauswirtschaftsraum ca. 8,95 m²
Badezimmer ca. 6,24 m²
Schlafzimmer ca. 13,93 m²
Gästezimmer ca. 10,79 m²
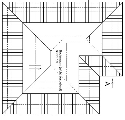
Dachgeschoss:
Ausbaureserve
Nutzflächen:
Garage mit Geräteraum
Seit 2021 leitet er in zweiter Generation das Unternehmen. Ralf Gründer ist Inhaber von Gründer Immobilien in Dörpen…
Alle Immobilien des MaklersBüro: 04963-914923
E-Mail: anfrage@gruender-immobilien.de
Objektnummer: 8496#dxEpb5
Objektnummer: 8486#dxEpb5
„Zuhause dort, wo die Sonne über der Ems aufgeht“ Ihr Neubau-EFH– Wohnen im maritimen Ambiente.
Bei uns behalten Sie den Überblick . Im Benutzerbereich können SIe Ihre Objekte verwalten.