Käufer Provisionsfrei: Wohnhaus mit Substanz u. Entwicklungspotenzial in Lathen
Objektnummer: 8500#dxEpb5
243.000€
26907 Walchum, Deutschland
Zu Verkaufen
129.000€







































Dieses geschichtsträchtige Einfamilienhaus aus dem Jahr 1920 wartet darauf, wieder zu neuem Leben erweckt zu werden! Ursprünglich als Lehrerhaus erbaut, strahlt es noch heute den besonderen Charakter vergangener Zeiten aus – ein echtes Liebhaberstück mit Herz und Geschichte.
Mit einer Wohnfläche von ca. 135 m² bietet das Haus ausreichend Platz für Familien, Paare oder handwerklich geschickte Menschen, die Freude daran haben, eine Immobilie nach ihren eigenen Vorstellungen zu gestalten.
Das Haus befindet sich in einem gebrauchsfähigen, aber renovierungsbedürftigen Zustand – die ideale Gelegenheit für kreative Köpfe und Handwerker, die den Charme alter Häuser zu schätzen wissen und diesen mit modernen Elementen kombinieren möchten.
Auf dem großzügigen Grundstück von ca. 1.100 m² finden Sie genügend Raum für Gartenliebhaber, Hobbygärtner oder einfach für die Familie, um die Ruhe und Natur zu genießen.
Dieses ehemalige Lehrerhaus bietet Ihnen eine einzigartige Gelegenheit, ein Stück Geschichte zu erwerben und daraus Ihr persönliches Traumhaus zu machen. Mit etwas handwerklichem Geschick und Liebe zum Detail lässt sich hier ein wahres Schmuckstück schaffen – ein Zuhause mit Seele, Charakter und großem Garten.
Ob als Familienhaus, Projekt für Handwerker oder als individuelles Liebhaberobjekt – hier steckt jede Menge Potenzial zu einem sehr attraktiven Schnäppchenpreis von nur 130.000 € (provisionsfrei für den Käufer).
Das Objekt befindet sich in Walchum, einer idyllischen Gemeinde im schönen Emsland. Die Umgebung ist geprägt von viel Natur, freundlichen Nachbarn und einer hervorragenden Lebensqualität.
Walchum bietet alles, was man zum täglichen Leben benötigt: Einkaufsmöglichkeiten, Ärzte, Apotheke, Kindergarten, Grundschule und diverse Freizeitangebote sind fußläufig erreichbar.
Die Nähe zur Ems und zu weitläufigen Spazier- und Radwegen macht den Ort besonders attraktiv für Naturliebhaber. Durch die gute Verkehrsanbindung sind auch die umliegenden Orte wie Dörpen, Lathen oder Haren schnell zu erreichen.
Hier wohnen Sie ruhig, familiär und gleichzeitig zentral – perfekt für alle, die das ländliche Wohnen mit guter Infrastruktur schätzen.
Dieses charmante Einfamilienhaus vereint den nostalgischen Charakter eines historischen Gebäudes mit vielen liebevollen Details, die auf ein gemütliches Zuhause hindeuten. Auch wenn einige Bereiche modernisiert werden sollten, bietet das Haus bereits heute eine solide Grundsubstanz und zahlreiche Besonderheiten, die es von vielen anderen Immobilien abheben.
Im Mittelpunkt des Erdgeschosses steht das großzügige Esszimmer mit Kamin, das sofort eine warme und einladende Stimmung vermittelt. Hier lässt sich das Familienleben wunderbar gestalten – ob beim Abendessen im kleinen Kreis oder bei geselligen Runden mit Freunden. Der zweite Kamin im Sommergarten sorgt für zusätzliche Behaglichkeit: In diesem rund 20 m² großen, lichtdurchfluteten Raum lässt sich die Natur zu jeder Jahreszeit genießen. An kühlen Abenden spendet der Kaminofen wohlige Wärme, während Sie den Blick in den Garten schweifen lassen.
Die Einbauküche ist einfach, aber funktional – sie bietet alle wichtigen Geräte und kann mit etwas handwerklichem Geschick modernisiert oder nach eigenen Wünschen umgestaltet werden. Das Badezimmer wurde bereits zwischenzeitlich modernisiert und überzeugt durch seine helle Gestaltung, eine komfortable Badewanne sowie eine ebenerdige Dusche. Hier zeigt sich, dass klassische Bausubstanz und moderne Elemente wunderbar harmonieren können.
Ein großer Pluspunkt ist die Raumaufteilung mit insgesamt vier Schlafzimmern, von denen sich eines im Erdgeschoss befindet. Diese Struktur ermöglicht ein barriereärmeres Wohnen und ist auch ideal für Familien, Mehrgenerationenhaushalte oder für Menschen, die Wohnen und Arbeiten unter einem Dach verbinden möchten.
Im Außenbereich erwartet Sie ein weitläufiges Grundstück mit vielen Gestaltungsmöglichkeiten. Der Doppelcarport direkt am Haus schützt Ihre Fahrzeuge zuverlässig vor Wind und Wetter. Eine Holzgartenhütte bietet zusätzlichen Stauraum für Gartengeräte, Fahrräder oder Brennholz. Der Garten selbst lädt dazu ein, kreativ zu werden – ob als Spielwiese, Nutzgarten oder kleine Wohlfühloase mit Terrasse und Blumenbeeten.
Das gesamte Anwesen strahlt eine besondere Ruhe und Bodenständigkeit aus – hier spürt man die Geschichte des Hauses und gleichzeitig das Potenzial für einen neuen Anfang. Mit überschaubarem Aufwand lässt sich dieses Haus Schritt für Schritt modernisieren und individuell gestalten – ganz nach Ihren Vorstellungen.
Ideal für Handwerker, Individualisten oder Familien, die den Charme alter Häuser lieben
Wohnflächenaufteilung:
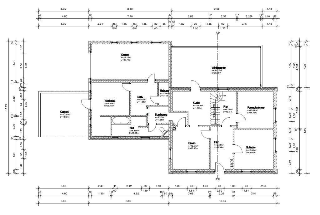
Erdgeschoss:
Diele ca. 9,65 m²
Wohn-Esszimmer ca. 15,51 m²
Fernsehzimmer ca. 13,04 m²
Küche ca. 10,63 m²
Schlafzimmer ca. 15,33 m²
Treppenaufgang ca. 8,74 m²
Badezimmer ca. 8,83 m²
Zwischenflur ca. 5,57 m²
Sommergarten ca. 36,23 m²
(Nicht in der Wohnfläche berücksichtigt)
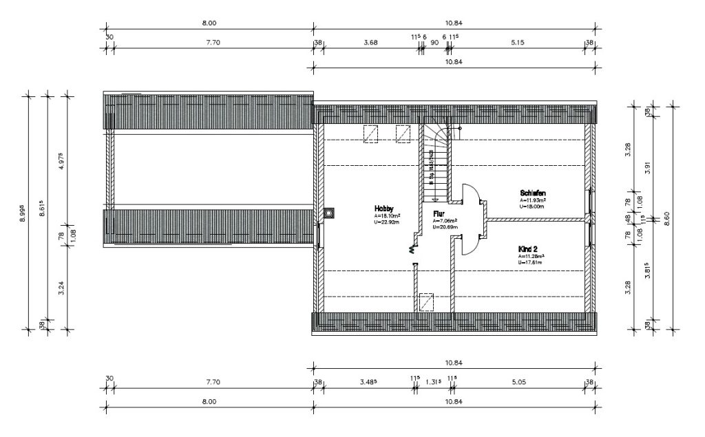
Dachgeschoss:
Flur ca. 7,06 m²
Schlafzimmer ca. 11,93 m²
Schlafzimmer ca. 11,28 m²
Schlafzimmer ca. 17,10 m²
Toilette ca. 1,00 m²
Nutzflächenaufteilung:
Geräteraum ca. 28,23 m²
Carport ca. 20,91 m²
Abstellraum ca. 7,62 m²
Hobbyraum ca. 16,31 m²
Heizungsraum ca. 2,20 m²
Holzgarten-Hütte
Seit 2021 leitet er in zweiter Generation das Unternehmen. Ralf Gründer ist Inhaber von Gründer Immobilien in Dörpen…
Alle Immobilien des MaklersBüro: 04963-914923
E-Mail: anfrage@gruender-immobilien.de
Objektnummer: 8500#dxEpb5
Objektnummer: 8487#dxEpb5
Provisionsfrei für Käufer: Wohnen, wie es im Alter sein sollte – seniorengerecht
Bei uns behalten Sie den Überblick . Im Benutzerbereich können SIe Ihre Objekte verwalten.